Owners manual

Installation Instructions
GOOSENECK MOUNTING KIT
Chevrolet/GMC 3500 Long Bed
2001 - 2007 “Classic”
Part Numbers:
4445
Equipment Required:
Equipment
Required:
Fastener Kit: 4434F
Wrenches: 3/4, 15/16
Drill Bits: 1/4”
Other Tools: Drill, Reciprocating saw
WARNING: Under no circumstances do we recommend
exceeding the towing vehicle manufacturers recommended vehicle
towing capacity.
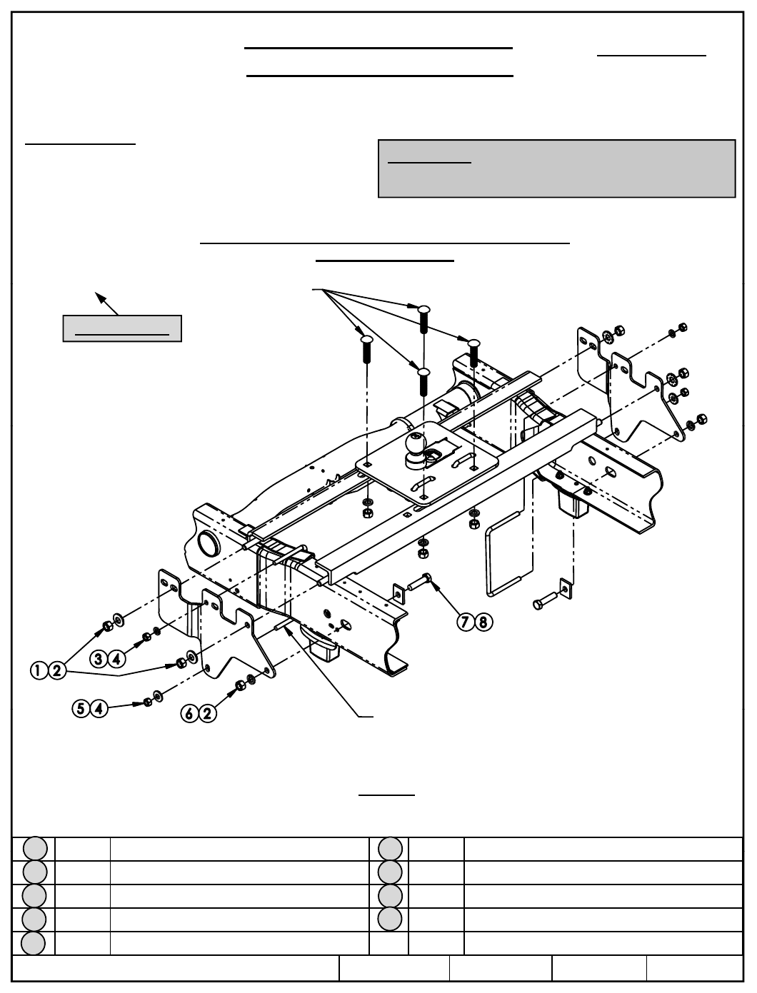
All Fasteners Typical, Both Sides
6300/8339/83391/83399 GOOSENECK HITCH
INSTALLATION
5/8” F t
Vehicle Forward
5/8”
F
as
t
eners
From Hitch
Fastener Kit
Figure 6
Q
t
y.
(
4
)
Co
ni
ca
l T
oo
th
ed
Was
h
e
r
,
5/8
”
Q
t
y.
(
2
)
L
oc
k
Was
h
e
r
,
5/8
”
6
1
U-Bolt
z2008, 2009 Cequent Performance Products
Sheet 5 of 8 4445N 4-3-09 Rev. D
Qy.( )
Co ca oo ed Was e , 5/8
Qy.( )
oc Was e , 5/8
Qty. (6) Hex Nut, 5/8”-11 Qty. (2) Hex Bolt, 5/8”-11 x 2”
Qty. (4) Lock Washer, 1/2” Qty. (2) Spacer, 1/4” x 1-1/2” x 2”
Qty. (4) Hex Nut, 1/2”-13 Qty. (4) Shims, 5/16” x 2” x 1” (not shown in Figure 1)
Qty. (2) Conical Toothed Washer, 1/2”
6
7
8
5
4
3
2
1
9