Service manual

Table Of Contents
3-50 FUEL SYSTEM (DFI)
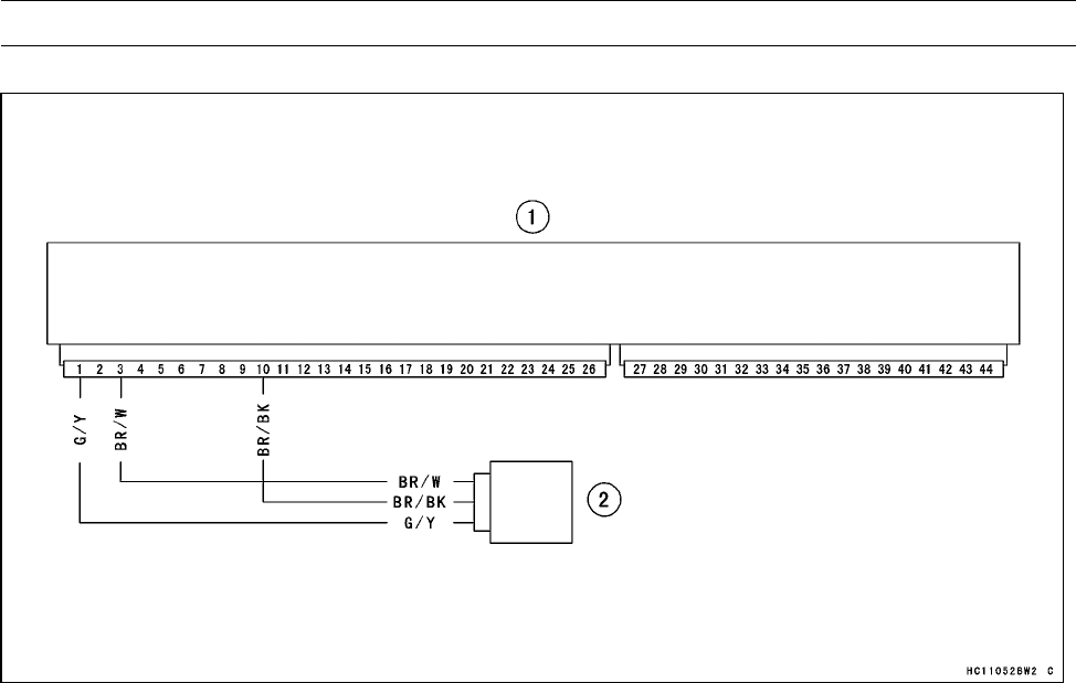
Inlet Ai r Pressure Sensor (Service Code 12)
Inlet Air Pressure Sensor Circuit
1. ECU (Electronic Control Unit)
2. Inlet Air Pressure Sensor