NOTES MATERIAL PYNQ CASE ASSEMBLY ACRYLIC FINISH SIZE A DRAWN BY: DWG NO.
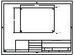
129.225 94.325 n3.200 NOTES MATERIAL PYNQ CASE TOP ACRYLIC FINISH SIZE A DRAWN BY: DWG NO.
129.225 R4.500 94.325 n3.200 NOTES MATERIAL PYNQ CASE BOTTOM ACRYLIC FINISH SIZE A DRAWN BY: DWG NO.