View Floor Plan
Manuals
Brands
Design America Manuals
Books & Building Plans
H013D-0039 - The Tennille - Building Plans Only
1
2
3
Page 2
of 3
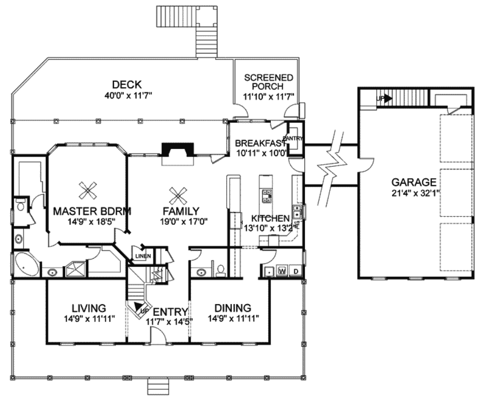
H013D-0039 TENNILLE
FIRST FL
OOR P
LAN
1
2
3