View Floor Plan
Manuals
Brands
Design America Manuals
Books & Building Plans
H001D-0031 - The Mayland - Building Plans Only
1
2
Page 2 of 2
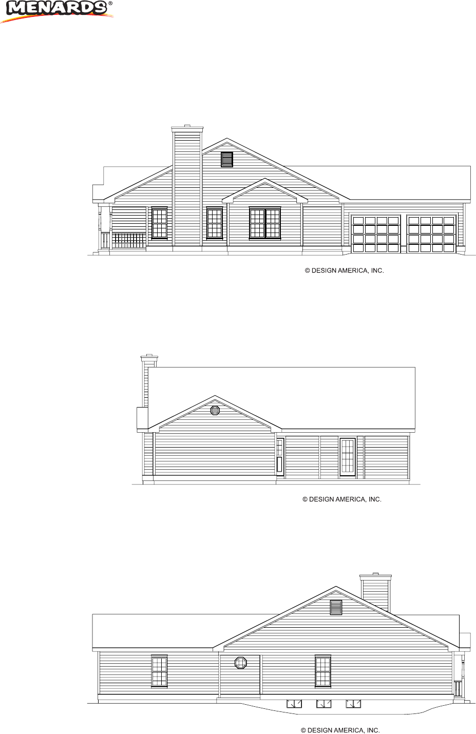
PLAN #001D-0031 - The MA
YLAND
RIGHT ELEV
A
TION
REAR ELEV
A
TION
LEFT ELEV
A
TION
1
2