Indoor Fireplace User Manual
Table Of Contents

www.desatech.com
107777-01E 11
INSTALLATION DU SYSTÈME DE VENTILATION
suite
Inclinaison Pente Ouverture
« A » max.
N
o
de modèle
des solins
utilisés
Plane 0 °
38,1 cm
(15po)
V6F-8DM
0-6/12 26,6 ° 16
1
/
8
" V6F-8DM
6/12- 12/12 45,0 ° 20
3
/
8
" V12F-8DM
2. Déterminez le point central sur la toiture.
L'inclinaison est la distance que la toiture
descend en fonction d'une portée don-
née,habituellement30cm(12po).Une
inclinaisonde 15/30 (6/12)signieque
latoituredescendde15cm(6po)pour
chaque30cm(12po)mesuréshorizon-
talement à partir des chevrons.
3. Utilisez le tableau des ouvertures dans la
toiture(gure14,page10)pourdétermi-
ner la longueur appropriée de l'ouverture
et les solins requis.
4. Enlevez les bardeaux autour de l'ouver-
ture mesurée. Découpez cette portion.
5. Ajoutez les sections suivantes du conduit
jusqu'à ce que l'extrémité pénètre la ligne
delatoiture.Vériezsilesdégagements
appropriés sont maintenus. Élevez la
cheminée en ajoutant des sections
de conduit à double paroi jusqu'à une
hauteurminimalede76cm(30po)au-
dessus du plus haut point de l'ouverture
pratiquée. La terminaison et la cheminée
doiventatteindreaumoins92cm(36po)
au-dessus du plus haut point où celle-ci
passe à travers la toiture.
Figure 14 - Dimensions des ouvertures
dans la toiture
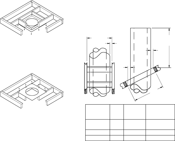
ENTRETOISES DE PARE-FEU
Des entretoises de pare-feu sont nécessaires
à chaque endroit où la cheminée traverse un
plancher. Elles servent à créer et à conserver
le dégagement nécessaire entre la cheminée
et les matériaux combustibles. Lorsque le
conduit passe à travers une ouverture enca-
drée vers un espace habité au-dessus, un
pare-feu doit être installé dans le plafond à
partirdubascommeillustréàlagure12.
Elles fournissent aussi une séparation com-
plète entre un espace habité et le suivant ou
avec le grenier comme requis par la plupart
des codes. Lorsqu'un conduit à double paroi
passe à travers une ouverture encadrée
vers le grenier, un pare-feu doit être installé
sur le plancher du grenier comme illustré à
lagure13.
PÉNÉTRATION DE LA TOITURE
Pour conserver un dégagement de 5 cm
(1po) du conduit sur unetoitureavecune
inclinaison, une ouverture rectangulaire doit
être pratiquée.
1. Déterminez le point central où le conduit
passera dans la toiture.
Figure 12 - Entretoise de pare-feu dans
le cas d'un espace habitable au-dessus
d'un plafond
Figure 13 - Entretoise de pare-feu dans
le cas d'un grenier au-dessus d'un
plafond
Si la surface au-dessus est une pièce
d'habitation, installez un coupe-feu en
dessous du trou encastré.
Si la surface au-dessus est un grenier ou
un espace non isolé, mettez un coupe-feu
au-dessus du trou encastré.
Dimensions Minimales
76,2 cm
(30 po)
Ouverture
« A »
36,5 cm
(14
3
/
8
po)
2,5 cm
(1 po)
2,5 cm
(1 po)
2,5 cm
(1 po)










