OWNER'S OPERATION AND INSTALLATION MANUAL DIRECT-VENT FIREPLACE TC36N,TC36P
Table Of Contents
- Safety Information
- Product Identification
- Local Codes
- Product Features
- Pre-Installation Preparation
- Location of Termination Cap
- Venting Installation Instructions
- Fireplace Installation
- Operating Fireplace
- Inspecting Burners
- Cleaning and Maintenance
- Troubleshooting
- Replacement Parts
- Service Hints
- Technical Service
- Specifications
- Illustrated Parts Breakdown and Parts List
- Accessories
- Warranty Information

www.desatech.com
116192-01E12
VENTING INSTALLATION
INSTRUCTIONS
Continued
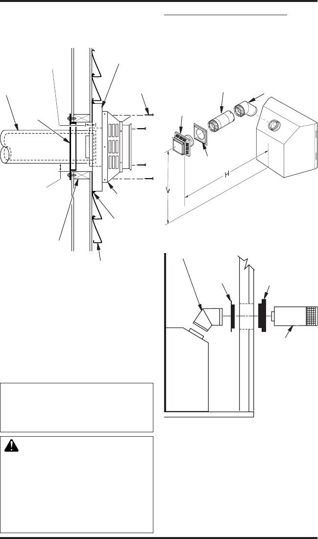
Figure 13 - Typical Horizontal
Termination Cap Mounting with
Additional Siding Standoff Installed
Siding Standoff
Screws
High Wind
Termination
Apply
Mastic to
Outside
Edge of
Standoff
Exterior Wall with Vinyl Siding
10
3
/
4
" x 10
3
/
4
"
Framed Opening
Maintain 1"
Minimum Air
Space Around
Outer Pipe When
Penetrating a Wall
Minimum Pipe
Overlap 1
1
/
4
"
Wall
Firestop
Direct-Vent
Pipe
Figures 14 through 18 show different congura-
tions and alternatives for venting with horizontal
termination. Each figure includes a chart with
critical minimum and maximum dimensions which
MUST be met. IMPORTANT: Remember that a
horizontal run of venting must have a 1/4" rise for
every 12" of run toward the termination.
WARNING: Never run vent
downward as this may cause
-
GROUND FLOOR INSTALLATION
Recommended Applications:
• Installation using cabinet surrounds
• Through the wall using round or square termina-
tion (up to 12" horizontal pipe)
• NOT FOR CORNER INSTALLATION
Horizontal
High Wind
Square
Termination
Wall Firestop
45° Elbow
Figure 14 - Horizontal Termination
Conguration for Square or Round
Terminations
45° Elbow
Wall
Firestop
Horizontal
Round
Termination
Exterior Portion
of Wall Firestop
(Round
Termination
Only)
Adjustable
Pipe 12" Max.
Round
Termination
32
3
/
4
" min. 17" max.
* If installing this replace at altitudes of
4000 feet and above, it is recommended
that an additional vertical height of 6" be
added to the vent system.










