OWNER'S OPERATION AND INSTALLATION MANUAL B-VENT DECORATIVE GAS FIREPLACE P324E, VP324E, P325E(B),VP325E(B)

108794-01C
6
For more information, visit www.desatech.com
For more information, visit www.desatech.com
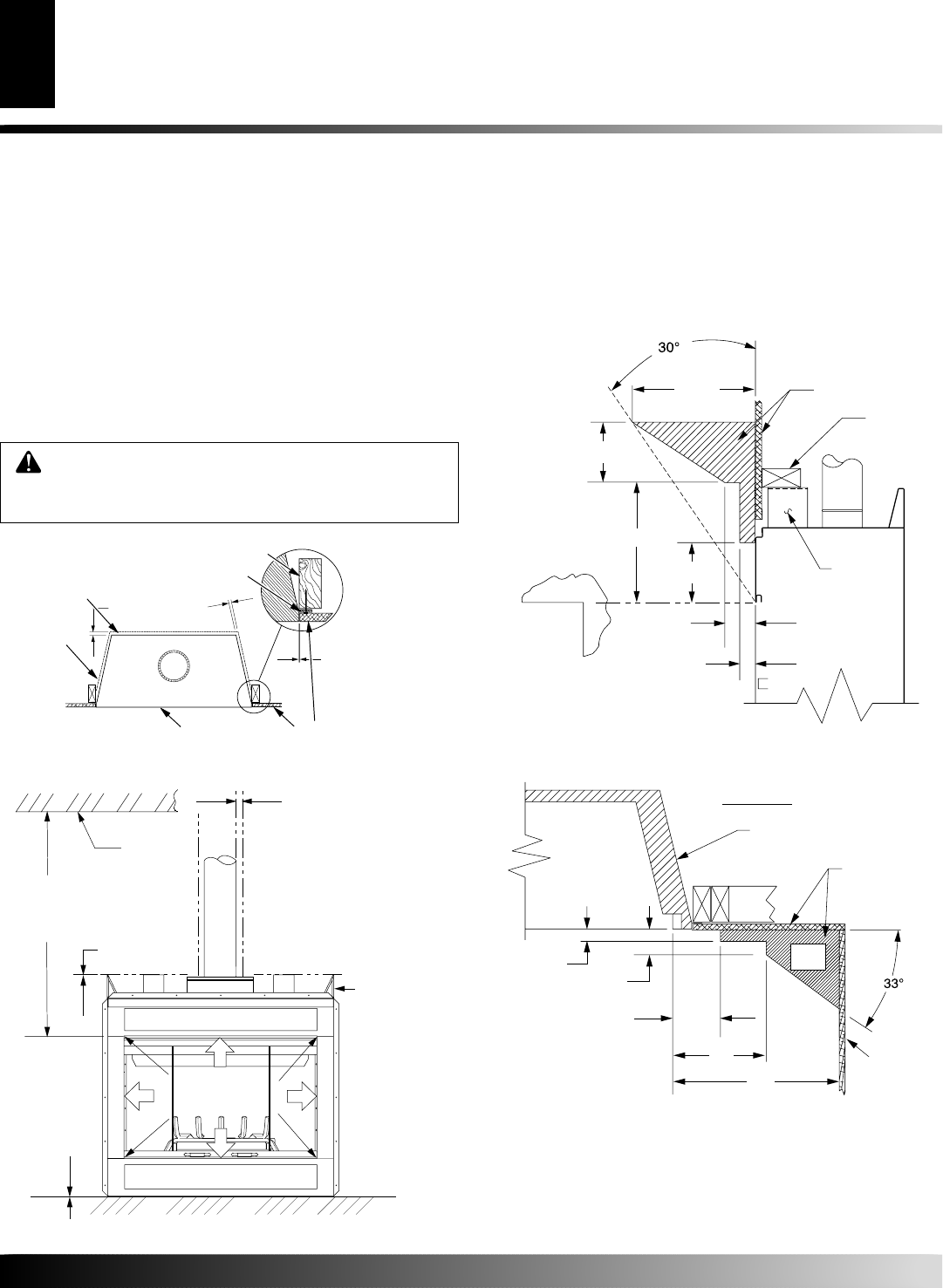
CLEARANCES
Minimum clearances to combustibles are:
• Top of Spacers........................................................... 0" min.
• Back and Sides of Outer Surround............................ 0" min.
• Drywall to Sides of Front Face (Nailing Flanges) ... 0" min.
• “B” Vent Surfaces ..................................................... 1" min.
• Ceiling to Opening .................................................. 42" min.
• Floor .......................................................................... 0" min.
• Perpendicular Wall ............................................See Figure 6
CAUTION: Do not block required air spaces with
insulation or any other material. Do not obstruct effective
opening of appliance with any type of facing material.
PRE-INSTALLATION
PREPARATION
Figure 3 - Minimum Clearances (Top View)
Figure 4 - Minimum Clearances (Front View)
*
*
**
42" (1067mm)
Min. Clearance
from Opening to
Ceiling
0" Clearance
Ceiling
1" (25mm) Min.
Clearance to
"B" Vent’s Outer Pipe
Required Air
Spaces are
Indicated with
an "
*
". Do Not
Pack with
Insulation or Any
Other Material
DO NOT BLOCK
OR OBSTRUCT
OPENINGS
0" Clearance
to Wood or
Noncombustible
Flooring
MANTEL CLEARANCES AND WALL DETAILS
A combustible mantle shelf maybe installed a maximum 12"
(229mm) from the wall. Figures 5 and 6 show the minimum
allowable distances from various combustible mantle components
in relation to the fireplace opening.
Spacer
3" (76mm)
1
1
/
2
"
(38mm) Max.
8"
6" (152mm)
13"
12"
(229mm)
Combustible
Materials
Header
Figure 5 - Mantel Clearances - Side View (Cross Section)
1
1
/
2
" (38mm)
Max.
3" (76mm)
Max.
6" (152mm)
Max.
9"
12"
Outer Surround
Combustible
Material May
Be Used
TOP VIEW
SAFE
ZONE
Perpendicular
Wall
Figure 6 - Side Clearances - Top View (Cross Section)
PRE-INSTALLATION PREPARATION
Clearances
Mantel Clearances and Wall Details
(Front View)
0"
0" Clearance
Nailing
Flange
Front Face
Left Side
Surround
Back
Drywall
2 x 4 Stud










