® UNVENTED (VENT-FREE) LogMate II™ FIREBOX This firebox may be installed in an aftermarket* manufactured (mobile) home, where not prohibited by state or local codes. * Aftermarket: Completion of sale, not for purpose of resale, from the manufacturer (i.e. Installation of this product is permitted after the manufactured (mobile) home is sited).
CONTENTS SECTION PAGE Safety Information .......................................................................................................... 2 Product Specifications .................................................................................................... 4 Local Codes .................................................................................................................... 5 Unpacking ............................................................................................
SAFETY INFORMATION Continued WARNING ICON G 001 WARNINGS Continued WARNING: Any change to this firebox or its controls can be dangerous. 1. This firebox shall not be installed in a bedroom or bathroom. 2. Never install the firebox • in a recreational vehicle • where curtains, furniture, clothing, or other flammable objects are less than 36 inches from the front, top, or sides of the firebox • in high traffic areas • in windy or drafty areas 3. Do not use this firebox as a wood-burning fireplace.
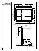
Standoffs (Model FB32NC only) PRODUCT SPECIFICATIONS 35 1/16" 2 3/4" Built-in Nailing Flanges 19 3/8" 16 1/4" 31 3/4" 2 3/4" 6 3/8" Figure 1 - Firebox Front View Louvers (Model FB32C only) Standoffs (Model FB32NC only) 2 3/4" 1 1/2" 6" 33 11/16" 32 3/16" 12 1/2" 9 3/4" 4 5/8" 2 1/2" Electrical Access Hole 4 Electrical Access Hole with Bushing Gas Line Access Figure 2 - Firebox Side View 103296
PRODUCT SPECIFICATIONS 22 1/2" Continued 16 1/2" 19 1/4" 31 5/8" 34 3/8" 35 5/8" Figure 3 - Firebox Side View LOCAL CODES Install and use fireplace with care. Follow all local codes. In the absence of local codes, use the latest edition of The National Fuel Gas Code ANSI Z223.1, also known as NFPA 54*. Firebox must be electrically grounded in accordance with the National Electrical Code, ANSI/NFPA70 (latest edition). *Available from: American National Standards Institute, Inc.
PRODUCT FEATURES Operation This firebox is designed to accept all gas log heaters listed in Table 1, page 2. It requires no outside venting or chimney making installation easy and inexpensive. When used without the blower (model FB32C only), the firebox requires no electricity making it ideal for emergency back-up heat. Blower Accessory The FB32C firebox will accept the GA3500A accessory. The variable blower allows you to select the fan speed you desire.
AIR FOR COMBUSTION AND VENTILATION Continued PROVIDING ADEQUATE VENTILATION The following is exerpts from National Fuel Gas Code. NFPA 54/ANSI Z223.1, Section 5.3, Air for Combustion and Ventilation. All spaces in homes fall into one of the three following ventilation classifications: 1. Unusually Tight Contruction; 2. Unconfined Space; 3. Confined Space. The information on pages 6 through 9 will help you classify your space and provide adequate ventilation.
AIR FOR COMBUSTION AND VENTILATION Continued DETERMINING AIR FLOW FOR FIREBOX LOCATION Determining if You Have a Confined or Unconfined Space Use this work sheet to determine if you have a confined or unconfined space. Space: Includes the room in which you will install firebox plus any adjoining rooms with doorless passageways or ventilation grills between the rooms. 1. Determine the volume of the space (length x width x height). Length x Width x Height = ___________________ cu. ft.
AIR FOR COMBUSTION AND VENTILATION Continued VENTILATION AIR Ventilation Air From Inside Building This fresh air would come from an adjoining unconfined space. When ventilating to an adjoining unconfined space, you must provide two permanent openings: one within 12" of the ceiling and one within 12" of the floor on the wall connecting the two spaces (see options 1 and 2, Figure 4). You can also remove door into adjoining room (see option 3, Figure 4). Follow the National Fuel Gas Code NFPA 54/ANSI Z223.
INSTALLING NOTICE A qualified service person must install firebox. Follow all local codes. WARNING ICON G 001 WARNING Never install the firebox • in a bedroom or bathroom • in a recreational vehicle • where curtains, furniture, clothing, or other flammable objects are less than 36 inches from the front, top, or sides of the firebox • in high traffic areas • in windy or drafty areas WARNING ICON G 001 CAUTION Log heaters installed in this firebox create warm air currents.
INSTALLING Mantel Clearances for Conventional Installation Continued Note: Clearances are the same if using optional cabinet mantel or built-in installation.
INSTALLING Continued INSTALLING BLOWER ACCESSORY (Model FB32C only) You may install blower accessory GA3500A with conventional installation (page 15) or with built-in installation (page 17) with model FB32C only. To install blower accessory, see instruction sheet included with the kit. Conventional Installation of Blower Accessory 1. Install blower assembly per instruction sheet included in blower accessory kit. 2.
INSTALLING INSTALLING LOG HEATER IN FIREBOX Continued WARNING ICON G 001 CAUTION Do not pick up log base assembly by burners. This could damage burners. Only handle base by grates. 1. Remove four screws holding firebox bottom in place. 2. Lift and remove firebox bottom (see Figure 10). 3. If installing GA3500A Blower Accessory (Model FB32C only), see Installing Blower Accessory, page 12. Figure 10 - Removing Firebox Bottom 4.
INSTALLING Continued INSTALLING FIREPLACE HOOD 1. Attach three zinc-colored shoulder screws to back of hood. 2. Insert hood into hood-mounting slots on firebox. 3. Hold hood in place. Insert two black Phillips screws through bottom of hood and tighten. Hood Hood Mounting Slot Shoulder Screw Screw Figure 12 - Installing Fireplace Hood INSTALLING FIREPLACE SCREEN 1. Insert each rod through nine rings located at top of screen. 2. Insert first rod into rear hole in left side of firebox.
INSTALLING Continued FIREBOX INSTALLATION USING OPTIONAL ACCESSORY MANTELS This firebox may be installed using the corner or cabinet mantel with hearth base accessories against a wall in your home. You must use a GA6090 brass trim kit to properly install the mantel accessories (see Accessories, pages 20 and 21). Follow the instructions below to install the firebox in this manner.
INSTALLING Continued 5. Route flexible gas line through access hole in hearth base. 6. Center cabinet mantel on hearth base (see Figure 15). Make sure mantel is flush against wall. ¢¢¢¢ ,,,, QQQQ ,,,, QQQQ ¢¢¢¢ ,,,, QQQQ ¢¢¢¢ ,,,, QQQQ ¢¢¢¢ ,,,, QQQQ ¢¢¢¢ ,,,,, QQQQQ ¢¢¢¢¢ ,,,,, QQQQQ ¢¢¢¢¢ Cabinet Mantel Figure 15 - Installing Cabinet Mantel 7. Break off nailing flanges (see Figure 16) with hammer or pliers.
INSTALLING Continued 10. If installing GA3500A blower (FB32C firebox only), route blower electrical cord through bushing in right side firebox support and bushing in side access opening of firebox. Plug electrical cord into electrical outlet. See Installing Blower Accessory, page 12. 11. Carefully insert firebox into cabinet mantel. Be careful not to scratch or damage hearth base, cabinet mantel, or any laminate trim on hearth base.
INSTALLING Continued If installing in a corner, use dimensions shown in Figure 19 for the rough opening. The height is 33" (FB32C) or 34 1/4" (FB32NC), which is the same as the wall opening in Figure 18. 39 3/8" 27 7/8" 35 1/2" 55 5/8" Figure 19 - Rough Opening for Installing in Corner 2. Install gas piping to firebox location. This installation includes an approved flexible gas line (if allowed by local codes) after the manual shutoff valve.
TECHNICAL SERVICE REPLACEMENT PARTS You may have further questions about installation, operation, or troubleshooting. If so, contact DESA International’s Technical Service Department at 1-800-DESA LOG (1-800-337-2564). Note: Use only original replacement parts. This will protect your warranty coverage for parts replaced under warranty. Parts Under Warranty Contact authorized dealers of this product.
ACCESSORIES Purchase these firebox accessories from your local dealer. If they can not supply these accessories, call DESA International’s Sales Department at 1-800-432-2382 for information. You can also write to the address listed on the back page of this manual.
ACCESSORIES Continued ¢¢¢¢¢¢ ,,,,,, QQQQQQ ,,,,,, QQQQQQ ¢¢¢¢¢¢ ,,,,,, QQQQQQ ¢¢¢¢¢¢ ,,,,,, QQQQQQ ¢¢¢¢¢¢ ,,,,,, QQQQQQ ¢¢¢¢¢¢ ,,,,,, QQQQQQ ¢¢¢¢¢¢ ,,,,,, QQQQQQ ¢¢¢¢¢¢ ,,,,,, QQQQQQ ¢¢¢¢¢¢ ,,,,,, QQQQQQ ¢¢¢¢¢¢ CORNER MANTEL GM200F Series - Walnut Finished GM201U Series - Unfinished Shown with optional laminate mantel trim accessory.
ILLUSTRATED PARTS BREAKDOWN 17 17 Model FB32NC 13 15 17 16 5 1 2 7 16 16 16 4 18 3 18 11 2 16 16 9 18 12 20 ,,,,,, ,,,,,, ,,,,,, ,,,,,, ,,,,,, ,,,,,, ,,,,,, ,,,,,, ,,,,,, ,,,,,, ,,,,,, ,,,,,, ,,,,,, ,,,,,, ,,,,,, ,,,,,, ,,,,,, ,,,,,, 14 19 10 16 8 6 22 103296
PARTS LIST Firebox This list contains replaceable parts used in your firebox. When ordering parts, follow the instructions listed under Replacement Parts on page 19 of this manual. Model FB32NC KEY NO.
ILLUSTRATED PARTS BREAKDOWN Model FB32C 15 16 5 1 2 7 16 16 4 18 21 3 18 11 17 2 16 16 9 18 12 20 24 ,,,,,, ,,,,,, ,,,,,, ,,,,,, ,,,,,, ,,,,,, ,,,,,, ,,,,,, ,,,,,, ,,,,,, ,,,,,, ,,,,,, ,,,,,, ,,,,,, ,,,,,, ,,,,,, ,,,,,, ,,,,,, 14 19 10 16 13 23 8 6 22 103296
PARTS LIST Firebox This list contains replaceable parts used in your firebox. When ordering parts, follow the instructions listed under Replacement Parts on page 19 of this manual. Model FB32C KEY NO.
NOTES _________________________________________________________________ _________________________________________________________________ _________________________________________________________________ _________________________________________________________________ _________________________________________________________________ _________________________________________________________________ _________________________________________________________________ ___________________________________________
NOTES _________________________________________________________________ _________________________________________________________________ _________________________________________________________________ _________________________________________________________________ _________________________________________________________________ _________________________________________________________________ _________________________________________________________________ ___________________________________________
WARRANTY INFORMATION KEEP THIS WARRANTY Model Serial No. Date Purchased Always specify model and serial numbers when communicating with the factory. We reserve the right to amend these specifications at any time without notice. The only warranty applicable is our standard written warranty. We make no other warranty, expressed or implied.