OWNER'S OPERATION AND INSTALLATION MANUAL DIRECT-VENT FIREPLACE T32N-a SERIES, CGDV32NR,T32p-a SERIES,CGDV32pR
Table Of Contents
- Safety Information
- Product Identification
- Local Codes
- Product Features
- Pre-Installation Preparation
- Location of Termination Cap
- Venting Installation Instructions
- Fireplace Installation
- Operating Fireplace
- Inspecting Burners
- Cleaning and Maintenance
- Troubleshooting
- Replacement Parts
- Service Hints
- Technical Service
- Specifications
- Accessories
- Illustrated Parts Breakdown and Parts List
- Warranty Information

www.desatech.com
116646-01D 11
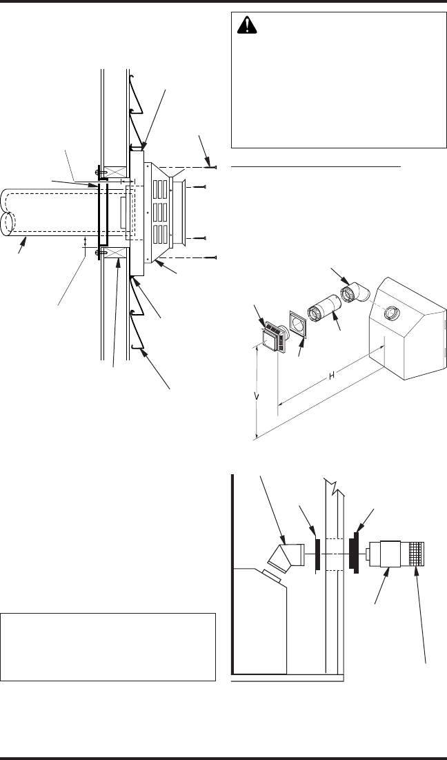
Figure 13 - Typical Horizontal
Termination Cap Mounting with
Additional Siding Standoff Installed
Siding
Standoff
Screws
High Wind
Termination
Apply
Mastic to
Outside
Edge of
Standoff
Exterior Wall
with Vinyl
Siding
10
3
/4" x 10
3
/4"
Framed Opening
Maintain 1"
Minimum Air Space
Around Outer Pipe
When Penetrating
a Wall
Minimum Pipe
Overlap 1
1
/4"
Wall
Firestop
Direct
Vent
Pipe
VENTING INSTALLATION
INSTRUCTIONS
Continued
Horizontal Termination Congurations
Figures 14 through 18 show different congura-
tions and alternatives for venting with horizontal
termination. Each figure includes a chart with
critical minimum and maximum dimensions which
MUST be met. IMPORTANT: If using a venting
conguration of only horizontal venting with no
vertical run, a 1/4" rise for every 12" of run toward
the termination is required.
NOTICE: Do not seal termination
cap to vent pipe. Cap must be
removable for vent inspection
and maintenance.
Vertical (V) Horizontal (H)
29
3
/
4
" 17" max.
Horizontal High
Wind Square
Termination
Wall
Firestop
45° Elbow
Figure 14 - Horizontal Termination
Conguration for Square or Round
Termination
45° Elbow
Wall
Firestop
Slide Ring
Over Elbow
to Complete
Connection
Exterior
Portion of Wall
Firestop (Round
Termination Only)
GROUND FLOOR INSTALLATION
Recommended Applications:
• Installation using cabinet surrounds
• Through the wall using round or square termi-
nation (up to 12") horizontal pipe)
• NOT FOR CORNER INSTALLATION
Adjustable
Pipe 12"
Max.
Square Termination
WARNING: Never run vent
downward as this may cause
excessive temperatures which
could cause a re. Operation of
improperly installed and main-
tained venting system could
result in serious injury, property
damage or loss of life.
Horizontal Round
Termination
Round Termination
(Kit HTK Shown)










