OWNER'S OPERATION AND INSTALLATION MANUAL VENT-FREE PROPANE/LP GAS COMPACT FIREPLACE CGCF26TPA

13
104278
OWNER’S MANUAL
ON
POSITION
OFF
POSITION
Open
Closed
Manual
Shutoff
Valve
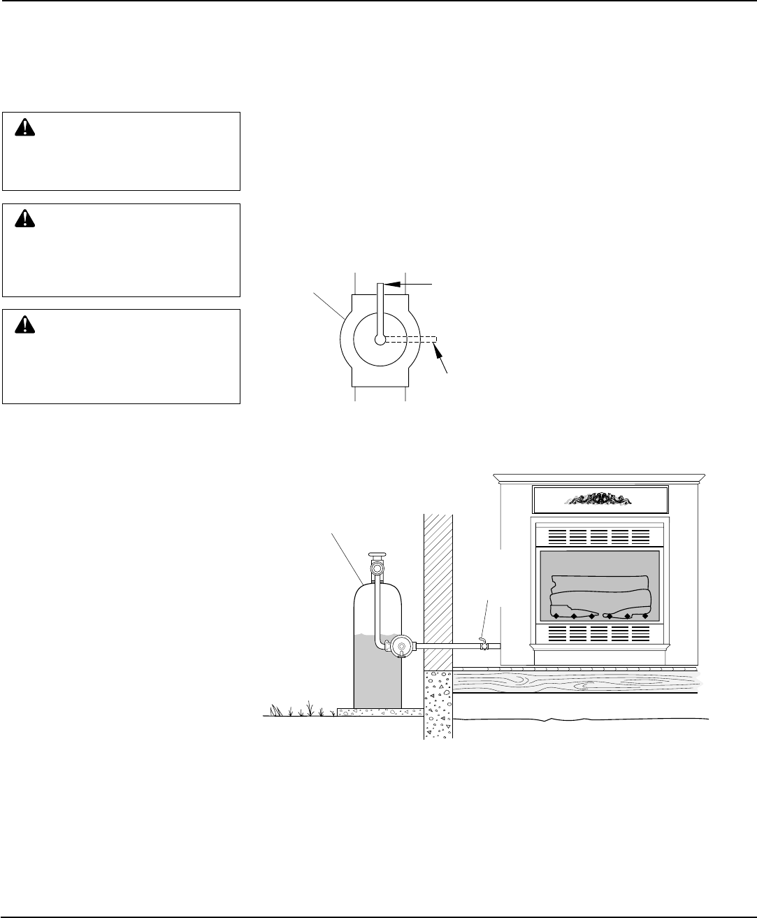
Figure 21 - Checking Gas Joints Shown with Optional Mantel
Figure 20 - Manual Shutoff Valve
Manual
Shutoff
Valve
Propane/LP
Supply Tank
CHECKING GAS
CONNECTIONS
Pressure Testing Gas Supply
Piping System
Test Pressures In Excess Of 1/2 PSIG
1. Disconnect fireplace and its individual
manual shutoff valve from gas supply
piping system. Pressures in excess of
1/2 psig will damage fireplace regulator.
2. Cap off open end of gas pipe where
manual shutoff valve was connected.
3. Pressurize supply piping system by ei-
ther using compressed air or opening
propane/LP supply tank valve.
4. Check all joints of gas supply piping
system. Apply mixture of liquid soap
and water to gas joints. Bubbles form-
ing show a leak.
5. Correct all leaks at once.
6. Reconnect heater and manual shutoff
valve to gas supply. Check reconnected
fittings for leaks.
WARNING: Test all gas pip-
ing and connections for leaks
after installing or servicing. Cor-
rect all leaks at once.
WARNING: Never use an open
flame to check for a leak. Apply a
mixture of liquid soap and water
to all joints. Bubbles forming show
a leak. Correct all leaks at once.
CAUTION: Make sure external
regulator has been installed be-
tween propane/LP supply and fire-
place. See guidelines under
Con-
necting to Gas Supply
, page 11.
Test Pressures Equal To or Less Than
1/2 PSIG
1. Close manual shutoff valve (see Fig-
ure 20).
2. Pressurize supply piping system by ei-
ther using compressed air or opening
propane/LP supply tank valve.
3. Check all joints from propane/LP sup-
ply tank to manual shutoff valve (see
Figure 21). Apply mixture of liquid
soap and water to gas joints. Bubbles
forming show a leak.
4. Correct all leaks at once.
Pressure Testing Fireplace Gas
Connections
1. Open manual shutoff valve (see Fig-
ure 20).
2. Open propane/LP supply tank valve.
3. Make sure control knob of fireplace is
in the OFF position.
4. Check all joints from manual shutoff
valve to thermostat gas valve (see Fig-
ure 21). Apply mixture of liquid soap
and water to gas joints. Bubbles form-
ing show a leak.
5. Correct all leaks at once.
6. Light fireplace (see Operating Fire-
place, pages 14 and 15). Check all other
internal joints for leaks.
7. Turn off fireplace (see To Turn Off Gas
to Appliance, page 15).
8. Replace front panel.
INSTALLATION
Continued










