Users Guide

Moduledecontrôle
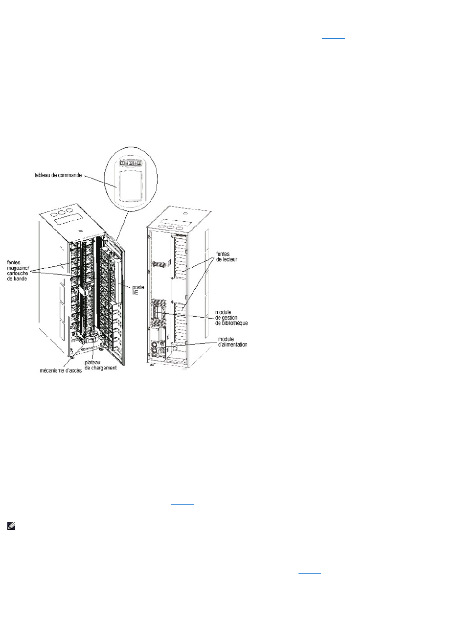
Cemoduledecontrôleestuncomposantdelabibliothèqueobligatoire.Ilcontientlesélémentssuivants(voirlaFigure 2) :
l Moduledegestiondebibliothèque
l Mécanismed'accèsaucartouches
l Poste Importation/Exportation
l Magasinsàbande
l Emplacementsdecartoucheàbande
l Lecteurs de bande
l Tableau de commande
l Alimentation
Figure2.Moduledecontrôle(vueinterne)
Gestiondelabibliothèque
Lecontrôledelabibliothèqueprovientdumoduledegestiondelabibliothèque.Cemodulegèrelematérieldusystèmeetacceptelespériphériquesexternes
pourconfigurerlabibliothèqueetobtenirl'étatdusystème.
Mécanismed'accèsaucartouches
Lemécanismed'accèsauxcartouchesdéplacelescartouchesentrelescellulesdestockage,leslecteursdebandeetleposteI/E.Unplateaudechargement
estutilisépourextraireouplacerlescartouchesdansunecelluledestockageouunemplacementdelecteurdebande.Leplateaudechargementsedéplace
entrelesaxesXetYaxisetpeutpivoterà180
o
. Un lecteur de code-barres sur le plateau de chargement identifie les cartouches et les cellules de stockage.
Poste Importation/Exportation
LeposteI/Evouspermetd'importeretd'exporterdescartouchessansinterromprelefonctionnementnormaldelabibliothèque.LeposteI/Eestsituésurla
partie avant dumoduledecontrôleoud'expansion.VoirlaFigure 1.ChaqueposteI/Edisposed'unecapacitéde24cartouchesLTOsituéesdansquatre
magasinsamovibles.Lacapacitévarieenfonctiondutypedelecteur.
Magasins de cartouche
Lemagasindecartoucheestunassemblagedestockagesituéducôtélecteurouducôtéportedumoduledecontrôleoud'expansion.Lemoduledecontrôle
peutloger264emplacementsLTOaumaximum.Lacapacitévarieenfonctiondutypedelecteur.VoirlaFigure 3.
Chaquemagasindebandeestdotéd'uneétiquettedecode-barresquipeutêtrelueparlescanneràdesfinsd'identificationetd'inventaire.Uncouverclede
protectionencliquetableenoptionestdisponiblepourlesmagasins.Lesmagasinsdotésducouvercledeprotectionpossèdentundispositifd'empilage
interverrouillépourlestockagedesupportexterne.
Figure 3. Emplacements des magasins et des lecteurs
REMARQUE :LeposteI/Enepeutêtreconfigurécommeunemplacementdestockage










