Installation Guide

1
1-
1
2
4-
1
8
8-
1
4
11-
1
4
15
16
5
8
11
16
1-
15
16
11-
11
16
-100°
10-
13
16
-130°
2-
1
16
-100°
1 - 130°
DOOR
STOP
9-
7
16
-100°
8-
5
8
-120°
7-
7
8
-180°
1-
11
16
1-
11
16
11
16
5
16
1-
1
16
1-
1
16
1-
3
4
4
STOP
FACE
DOOR
EDGE
7-
1
4
-100°
6-
5
16
-120°
5-
1
2
-180°
1-
1
2
1-
1
2
8-
1
4
15
16
3
4
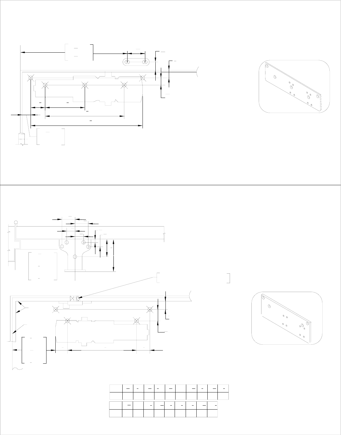
For fifth screw use spacer block
provided 1/2"or 5/8"
Left hand door shown,use opposite
for righr hand door
8000-DP PA
8000-DP
8000 Push Side Mount:
8000-DP PA Drop Plate
Left hand door shown,use opposite
for righr hand door
8000 Pull Side Mount:
8000-DP Drop Plate
8000 Pull Side Regular Drop plate
Allows 130° Maximum Opening
8000 PA Push Side Drop Plate
Allows 180° Maximum Opening.Maximunm hinge size 5"x5"
INCH
M.M.
5
16
5
8
11
16
3
4
15
16
1
1-
1
16
1-
1
2
1-
11
16
1-
3
4
4443382726241917168
INCH
M.M.
2-
1
16
4
5-
1
2
6-
5
16
7-
1
4
7-
7
8
8-
5
8
9-
7
16
11-
1
4
53 102 139 160 184 200 219 240 286


