Operating Instructions and Installation Instructions

4
147,5
470 ± 2
ø 60/100
500 500
900
50
98 130
130
140
250
360
130
186
130
260
20
52
16
190
8531N069B
113
190
5
6
2
1
8
7
3
125
260
4
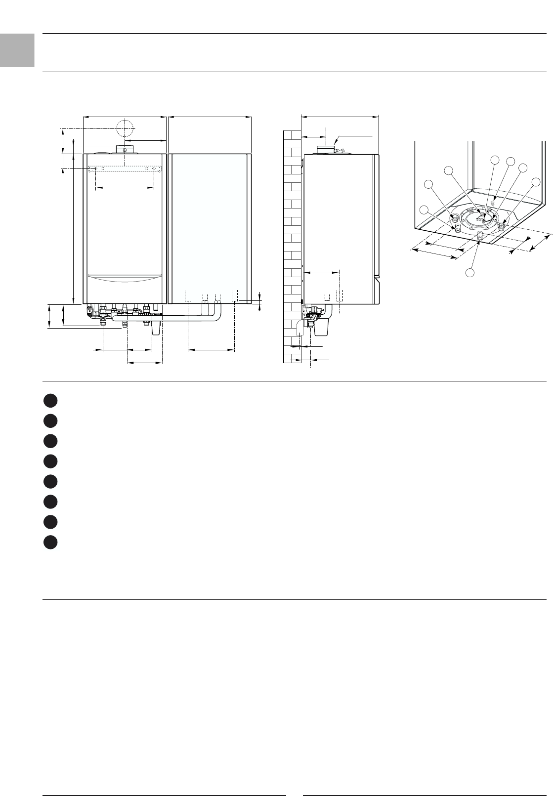
2.1 Dimensions - Raccordements
MC 15 LP/BS 80 - MC 25 LP/BS 80 -
DPSM 3-15 LP/BS 80 - DPSM 3-25 LP/BS 80
Purge de l'échangeur
Doigt de gant lg. 280 mm pour sonde du thermostat
Sortie eau chaude sanitaire R 3/4
Entrée de l'échangeur
Sortie de l'échangeur
Entrée eau froide sanitaire
R 3/4
Anode magnésium
Mise à la masse
R = filetage conique
G = filetage cylindrique (étanchéité par joint plat)
8
7
6
5
4
3
2
1
Nota : le ballon BS 80 D peut se monter à droite ou
à gauche de la chaudière.
F










