Operating Instructions and Installation Instructions

D
26
24 25
2857 56
17
20 - 40 mm
(54)
3a
29
59
99
27a
60
9
27
9
32
8953N122B
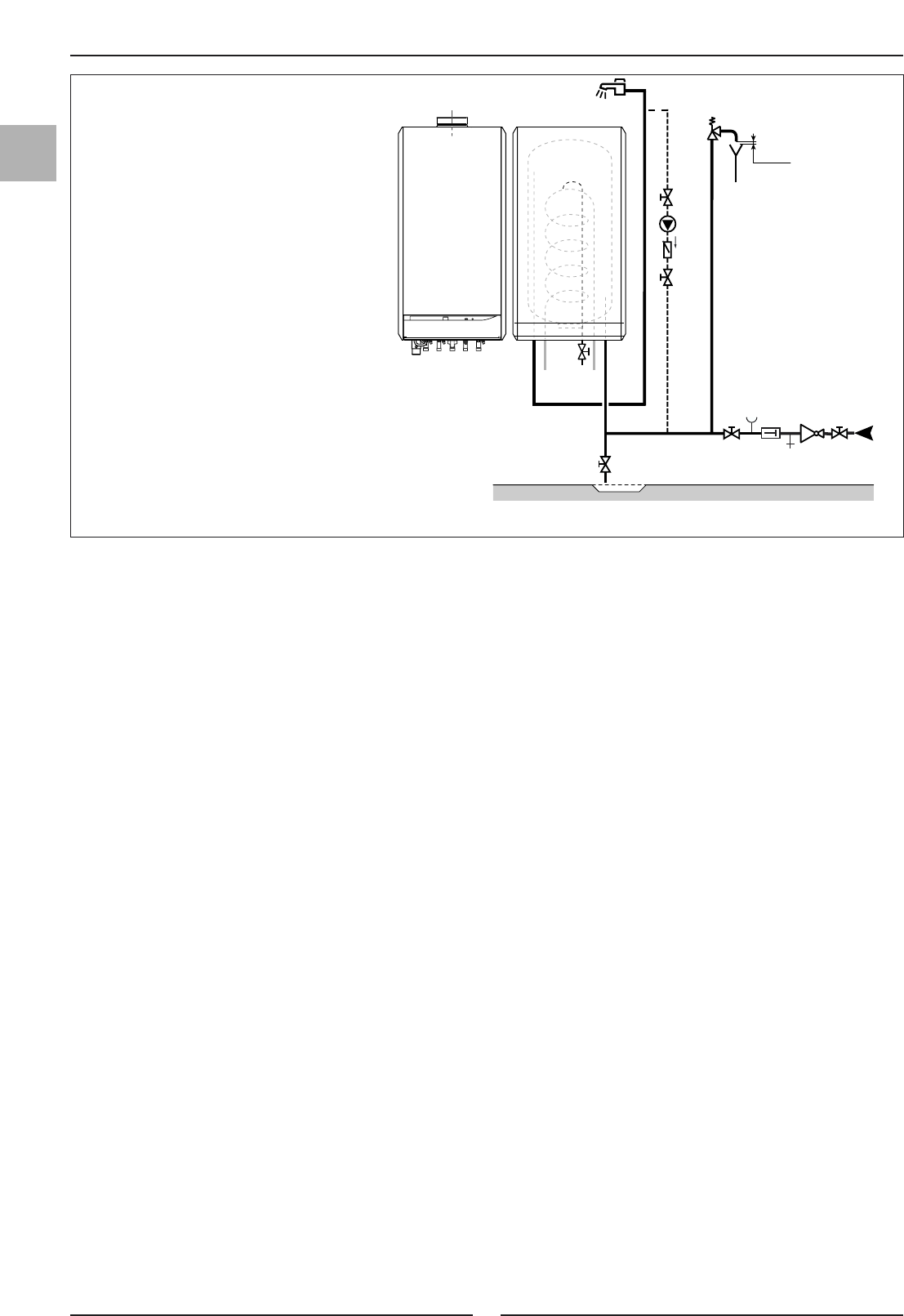
3a. Membransicherheitsventil
(DIN 4753 Teil 1)
über Speicheroberkante montieren
9. Absperrventil
17. Entleerungshahn
24. WWE-Wärmetauscherausgang
25. WWE-Wärmetauschereingang
27. Rückschlagklappe
27a. Rückflussverhinderer
28. Kaltwassereintritt (blau gekennz
.
)
29. Druckminderer
32. Brauchwasser Zirkulationspumpe
54. Mündung Abblaseleitung frei und
beobachtbar 20-40 mm über Trichter
56. Wärmetauscher-Handentlüfter
57. Warmwasseraustritt
59. Prüfventil
60. Manometer-Anschlussstutzen










