Operating Instructions and Installation Instructions

D
20
147,5
470 ± 2
ø 60/100
500 500
900
50
98 130
130
140
250
360
130
186
130
260
20
52
16
190
8531N069B
113
190
5
6
2
1
8
7
3
1
2
5
260
4
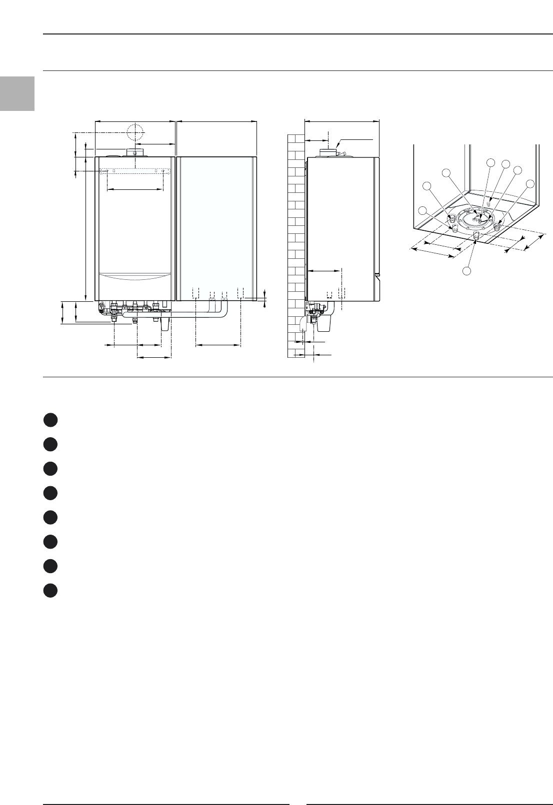
2.1 Anschlussabmessungen
MC 15 LP/BS 80 - MC 25 LP/BS 80 -
DPSM 3-15 LP/BS 80 - DPSM 3-25 LP/BS 80
Hinweis: Der Wandspeicher BS 80 D kann links oder
rechts vom Kessel angebracht werden.
R = Außengewinde, G = zylindrisches Gewinde für Verschraubung + Flachdichtung
2
8
7
6
5
4
3
1
Entlüfter des Wärmetauschers
Tauchhülse (Länge 280 mm) für NTC-Fühler
Magnesiumanode
Ausgang des Wärmetauschers G 3/4
Eingang des Wärmetauschers G 3/4
Kaltwassereintritt R 3/4 (blau gekennz.)
Warmwasseraustritt R 3/4 (rot gekennz.)
Massedraht










