Specification Sheet

14
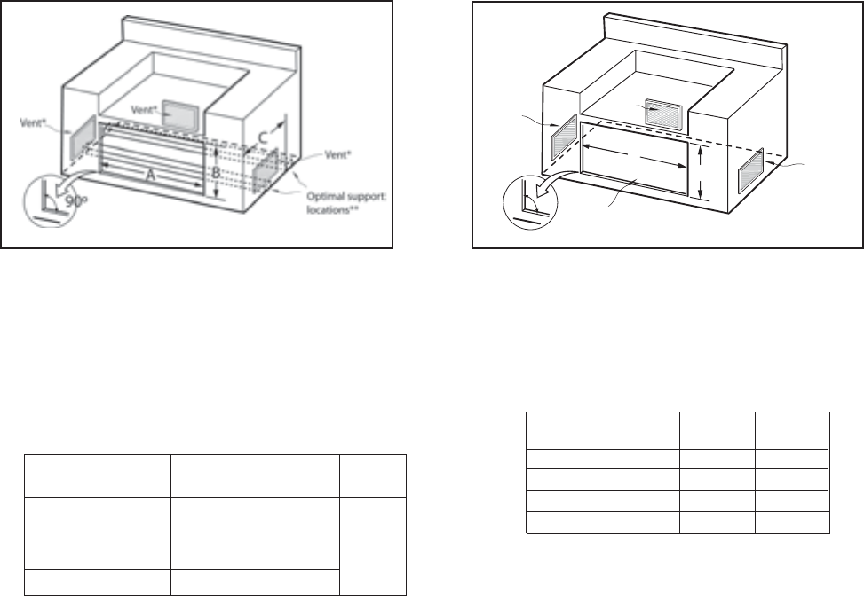
FIG. 06
PORTES D’ACCÈS DIMENSIONS DES DECOUPES
A
90º
B
Vent*
Vent*
Vent*
Découpe pour portes d’accès
LES TIROIRS DIMENSIONS DES DECOUPES
REMARQUE: La découpe de chaque coin doit être d’un angle
de 90 º pour que les tiroirs d’accès rentrent correctement.
* Installation en îlot pour utiliser un minimum de 3 évents, 64,5cm
2
/
10 pouces carrés par évent (type).
** Pour un support et un fonctionnement de tiroirs appropriés,
assurez-vous que les planches de support sont installées selon les
instructions du Guide d’installation.
Pour information sur la façon dont commander les tiroirs ou les portes d’accès, contactez DCS au 1.888.936.7872
REMARQUE: La découpe de chaque coin doit être d’un
angle de 90 º pour que les portes d’accès rentrent correct-
ement.
* Installation en îlot pour utiliser un minimum de 3 évents,
64,5cm
2
/ 10 pouces carrés par évent (type).
FIG. 07
INSTALLATION
DÉTAILS D’UNE CONSTRUCTION INTÉGRÉE
MODÈLE A B C
+0,1/8 +1/8,0
ADR248 46” 20”
ADR236 34” 20”
ADR230 28” 20”
ADR224 22” 20”
24-1/2”
(Min,
All
Models)
MODÈLE A B
+0,1/8 +1/8,0
ADN1 20x48 46” 20”
ADN1 20x36 34” 20”
ADN1 20x30 28” 20”
ADN1 20x24 22” 20”










