Specification Sheet

11
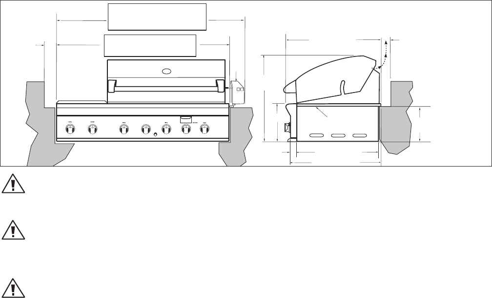
BH1- 48R/RGI = 135.25 cm/53-1/4 po
BH1- 48RS = 135,7 cm/53-7/16 po
BH1- 36R/RGI = 105,7 cm/41-5/8 po
(avec moteur de rôtissoire installé)
Modèles 48 po = 121,6 cm/47-7/8 po
Modèles 36 po = 91,12 cm/35-7/8 po
(sans moteur de rôtissoire installé)
moteur
de rôtissoire
61.6 cm/
24-1/4 po
26,67 cm/
10 1/2 po
67,6 cm/26 5/8 po
évacuation
du gril
7,6 cm/3 po
(dégagement min. pour
le couvercle avec une
construction non
combustible)
25.4 cm/
10 po
64,77 cm/25 1/2 po
56,7 cm/22-5/16 po
5,5 cm/
2-3/16 po
Fond de la
bride de soutien
7,6 cm/
3 po
FIG. 03
Important!
Les raccords de gaz, le régulateur et le robinet d’arrêt fournis par l’installateur doivent être facilement acces-
sibles.
Espaces de dégagement pour une construction non combustible *
Prévoyez une distance de 7,6 cm (3 po) minimum entre l’arrière du gril et la construction non combustible afin de
pouvoir ouvrir le couvercle complètement. Il est conseillé de prévoir au moins 15,3 cm (6 po) de dégagement latéral
et de l’arrière par rapport à la construction non combustible, au-dessus de la surface de cuisson, comme espace
de comptoir. Si vous prévoyez utiliser la rôtissoire, cet espace est essentiel pour le dégagement du moteur et de la
broche. Le gril peut être adjacent à la construction non combustible, au-dessous de la surface de cuisson (Fig. 03).
AVERTISSEMENT!
Le non-respect des dégagements requis pose un risque d’incendie pouvant causer des dommages matériels ou des
blessures graves.
AVERTISSEMENT!
Le Gril BH1 est conçu pour fonctionner à l’extérieur. Prévoyez des dégagements minimum recommandés pour toutes
les surfaces (combustibles et non combustibles) pour une performance optimale. Le matériau non combustible dans la
zone de dégagements minimum pourrait entraîner une décoloration ou une détérioration.
AVERTISSEMENT!
Si un matériau non combustible tel que le stuc recouvrant un matériau combustible comme le bois, la distance de
dégagement minimum doit être tenue au bois. La présence d’un matériau non combustible à l’intérieur de la zone de
dégagement n’élimine pas la zone de dégagement minimum au matériau combustible
* DÉFINITION DES MATÉRIAUX NON COMBUSTIBLE – Matériau incapable d’être enflammé et brûlé tel que les matériaux
composés entièrement, ou un mélange, d’acier, de fer, de brique, de tuile, de béton, d’ardoise et de plâtre.
Espaces de dégagement pour une construction combustible ** :
Un minimum de 45,7cm / 18 po des côtés et de l’arrière du gril doit être maintenu sur la construction com-
bustible verticale adjacente, au-dessus du niveau supérieur du comptoir. Vous devez tenir compte du fait qu’il
existe un grand volume de chaleur et que la fumée s’échappera de l’arrière du gril. Ce qui risque de décolorer ou
d’endommager les zones non protégées (Fig. 04). N’installez pas le gril sous une construction combustible non
protégée dans utiliser de système de ventilation sécurité feu. Il faut maintenir un dégagement minimum de 45,7cm
/ 18 po sous le comptoir sur la construction combustible. Le dégagement peut être modifié en utilisant une envel-
oppe isolée.
INSTALLATION
EMPLACEMENT DU GRIL ET DES DÉGAGEMENTS
Espaces de dégagement pour une construction non combustible *










