Installation manual
Table Of Contents
- INSTALLATION MANUAL
- 1. SAFETY CONSIDERATIONS
- 2. BEFORE INSTALLATION
- 3. SELECTING INSTALLATION SITE
- 4. PREPARATIONS BEFORE INSTALLATION
- 5. INDOOR UNIT INSTALLATION
- 6. REFRIGERANT PIPING WORK
- 7. DRAIN PIPING WORK
- 8. DUCT WORK
- 9. ELECTRIC WIRING WORK
- 10. WIRING EXAMPLE AND HOW TO SET THE REMOTE CONTROLLER
- 11. FIELD SETTING
- 12. TEST OPERATION

English 5
CAUTION
• Install the indoor and outdoor units, power supply wiring and
connecting wires at least 3.3 ft away from televisions or radios
in order to prevent image interference or noise.
(Depending on the radio waves, a distance of 3.3 ft may not
be sufficient enough to eliminate the noise.)
• In the case of the installation of a wireless remote controller, the
transmission distance of the wireless remote controller may be
shortened if the room has a fluorescent light of electronic light-
ing type (i.e., an inverter or rapid-start fluorescent light).
Keep the distance between the receiver and the fluorescent
light as far as possible.
(2) Use hanging bolts to install the indoor unit. Check that the
place of installation withstands the weight of the indoor unit.
Secure the hanging bolts with proper beams if necessary.
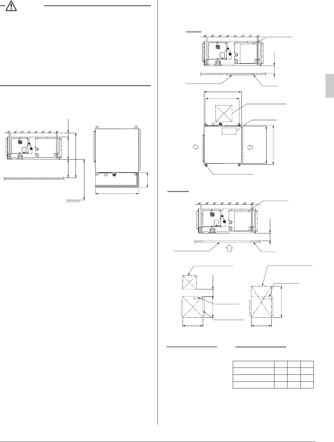
4. PREPARATIONS BEFORE INSTALLATION
(1) Check the positional relationship between the ceiling open-
ing hole and the hanging bolt of the unit.
• For the maintenance, inspection, and other servicing
purposes of the control box and drain pump, prepare one
of the following service spaces.
1. Inspection hatch 1 (17-3/4 × 17-3/4) for the control
box and a minimum space of 12 in. for the lower part
of the product. (Refer to Fig. 2-2)
2. Inspection hatch 1 (17-3/4 × 17-3/4) for the control
box and inspection hatch 2 for the lower part of the
product (see axial direction view A-1). (Refer to Fig.
2-3)
3. Inspection hatch 3 for the lower part of the product
and the lower part of the control box (see axial direc-
tion view A-2). (Refer to Fig. 2-3)
(length: in.)
Ceiling
Floor surface
• The H1 dimension indicates the
height of the product.
• Determine the H2 dimension by
maintaining a downward slope of
at least 1/100 as specified in
“7. DRAIN PIPING WORK”.
Min. 1
Min. 12
Min. 18
Min. 99
Min. 28 (service space)
(If no ceiling board is provided.)
*H1=12
*H2=Min. 25
[Required installation place]
The dimensions indicate the
minimum required space of
installation.
Fig. 2-1
28
24-13/16
(Hanging bolt pitch)
Inspection hatch 1
(17-3/4×17-3/4)
Inspection hatch
Control box
Control box
Ceiling
B
C
(Hanging bolt pitch)
Bottom of unit
Air inlet
Air outlet
Hanging bolt (× 4)
*H3=Min. 12
Fig. 2-2
Case 1
(length: in.)
28 28
Inspection hatch
Inspection hatch 1
(17-3/4×17-3/4)
Inspection
hatch 2
Inspection hatch 3
(Same as the indoor
unit size +12 or more)
Control box
Control box
Control box
Inspection hatch
(Ceiling opening)
Ceiling
Axial direction view A-1 Axial direction view A-2
Min. D=B+12
Min. 8B
*H3=Min. 3/4
07 • 09 • 12 type 22
23-1/8
34
Model B C D
40
40-7/8
52
56
56-5/8
68
18 • 24 • 30 type
36 • 48 type
(length: in.)
A
Fig. 2-3
Case 2, 3
(Same as the
indoor unit
size or more)
• Determine the H3
dimension by maintaining a
downward slope of at least
1/100 as specified in
“7. DRAIN PIPING WORK”.