Installation manual
Table Of Contents

English 3
FOR THE FOLLOWING ITEMS, TAKE SPECIAL CARE
DURING CONSTRUCTION AND CHECK AFTER
INSTALLATION IS FINISHED.
a. Items to be checked after completion of work
b. Items to be checked at time of delivery
Also review the “SAFETY PRECAUTIONS”
c. Points for explanation about operations
2-4 NOTE TO THE INSTALLER
Be sure to instruct customers how to properly operate the unit
(especially cleaning filters, operating different functions, and
adjusting the temperature) by having them carry out operations
themselves while looking at the manual.
3. SELECTING INSTALLATION SITE
Please attach additional thermal insulation material to the unit
body when it is believed that the relative humidity in the ceiling
exceeds 80%. Use glass wool, polyethylene foam, or similar with
a thickness of 10 mm or more as thermal insulation material.
(1) Select an installation site where the following conditions are
satisfied and that meets with your customer’s approval.
•
In the upper space (including the back of the ceiling) of the
indoor unit where there is no possible dripping of water
from the refrigerant pipe, drain pipe, water pipe, etc.
• Where optimum air distribution can be ensured.
• Where nothing blocks air passage.
• Where condensate can be properly drained.
• Where the ceiling is strong enough to bear the indoor unit
weight.
• Where the false ceiling is not noticeably on an incline.
• Where sufficient clearance for installation and mainte-
nance can be ensured.
• Where there is no risk of flammable gas leakage.
• Where piping between indoor and outdoor units is possi-
ble within the allowable limit. (Refer to the installation
manual for the outdoor unit.)
CAUTION
• Install the indoor and outdoor units, power supply wiring and
connecting wires at least 1 meter away from televisions or
radios in order to prevent image interference or noise.
(Depending on the radio waves, a distance of 1 meter may
not be sufficient enough to eliminate the noise.)
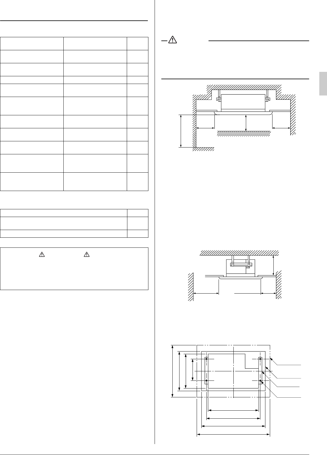
(2) Ceiling height
• Install this unit where the height of bottom panel is more
than 2.5 m so that the user cannot easily touch.
• This unit can be installed in ceilings up to 3.8 meters high.
If the ceiling height exceeds 2.7 meters, however, the
connector of terminal board (A2P) must be replaced and
an air outlet blocking pad must be installed. Refer to
HIGH CEILING INSTALLATION (P.9).
(3) Use suspension bolts for installation. Check whether
the ceiling is strong enough to support the weight of
the unit or not. If there is a risk, reinforce the ceiling
before installing the unit.
(Installation pitch is maked on the paper pattern for installa-
tion. Refer to it to check for points requiring reinforcing.)
4. PREPARATIONS BEFORE INSTALLATION
(1) Relation of ceiling opening to suspension bolt position
Items to be checked
If not properly done, what is
likely to occur
Check
Are the indoor and outdoor
unit fixed firmly?
The unit may drop, vibrate or
make noise.
Is the gas leak test finished?
It may result in insufficient
cooling.
Is the unit fully insulated? Condensate water may drip.
Does drainage flow
smoothly?
Condensate water may drip.
Does the power supply volt-
age correspond to that
shown on the name plate?
The unit may malfunction or
the components burn out.
Are wiring and piping cor-
rect?
The unit may malfunction or
the components burn out.
Is the unit safely grounded?
Dangerous at electric leak-
age.
Is wiring size according to
specifications?
The unit may malfunction or
the components burn out.
Is something blocking the air
outlet or inlet of either the
indoor or outdoor units?
It may result in insufficient
cooling.
Are refrigerant piping length
and additional refrigerant
charge noted down?
The refrigerant charge in the
system is not clear.
Items to be checked Check
Did you explain about operations while showing the instruc-
tion manual to your customer?
Did you hand the instruction manual over to your customer?
The items with WARNING and CAUTION marks in the
instruction manual are the items pertaining to possibilities for
bodily injury and material damage in addition to the general
usage of the product. Accordingly, it is necessary that you
make a full explanation about the described contents and
also ask your customers to read the instruction manual.
200
or more
200
or more
1000
or more
(length: mm)
2500 or more
For installation
in high places
20 or more
(length: mm)
(Suction side)(Discharge side)
220
or more
1500
or more
D
C
B
A
800
760
710
350
Decoration
panel
Indoor unit
(length: mm)
Suspension
bolt (×4)
Ceiling
opening
01_EN_3P086156-8X.fm Page 3 Wednesday, April 8, 2009 3:56 PM