Installation manual
Table Of Contents

English 3
FOR THE FOLLOWING ITEMS, TAKE SPECIAL
CARE DURING CONSTRUCTION AND CHECK
AFTER INSTALLATION IS FINISHED.
a. Items to be checked after completion of work
b. Items to be checked at time of delivery
Also review the “SAFETY PRECAUTIONS”
c. Points for explanation about operations
2-4 NOTE TO THE INSTALLER
Be sure to instruct customers how to properly operate the
unit (especially cleaning filters, operating different functions,
and adjusting the temperature) by having them carry out
operations themselves while looking at the manual.
3. SELECTING INSTALLATION SITE
(1) Select an installation site where the following condi-
tions are satisfied and that meets with your customer’s
approval.
• Where the floor is strong enough to dear the indoor unit
weight.
• Where the floor is not significantly inclined.
• Where nothing blocks the air passage.
• Where condensate can be properly drained.
• Where sufficient clearance for installation and mainte-
nance can be ensured.
• Where optimum air distribution can be ensured.
• Where there is no risk of flammable gas leakage.
• Where piping between indoor and outdoor units is possi-
ble within the allowable limit. (Refer to the installation
manual of the outdoor unit.)
CAUTION
• Install the indoor and outdoor units, power supply wiring
and connecting wires at least 1 meter away from televi-
sions or radios in order to prevent image interference or
noise.
(Depending on the radio waves, a distance of 1 meter may
not be sufficient enough to eliminate the noise.)
Items to be checked
If not properly done, what
is likely to occur
Check
Are the indoor and
outdoor unit fixed firmly?
The units may drop,
vibrate or make noise.
Is the gas leak test
finished?
It may result in insufficient
cooling.
Is the unit fully insulated?
Condensate water may
drip.
Dose drainage flow
smoothly?
Condensate water may
drip.
Dose the power supply
voltage correspond to
that shown on the name
plate?
The unit may malfunction
or the components burn
out.
Are wiring and piping
correct?
The unit may malfunction
or the components burn
out.
Is the unit safely
grounded?
Dangerous at electric
leakage.
Is wiring size according
to specifications?
The unit may malfunction
or the components burn
out.
Is something blocking
the air outlet or inlet of
either the indoor or
outdoor units?
It may result in
insufficient cooling.
Are refrigerant piping
length and additional
refrigerant charge noted
down?
The refrigerant charge in
the system is not clear.
Items to be checked Check
Did you explain about operations while showing the
instruction manual to your customer?
Did you hand the instruction manual over to your
customer?
The items with WARNING and CAUTION marks in the
instruction manual are the items pertaining to possibilities for
bodily injury and material damage in addition to the general
usage of the product. Accordingly, it is necessary that you
make a full explanation about the described contents and
also ask your customers to read the instruction manual.
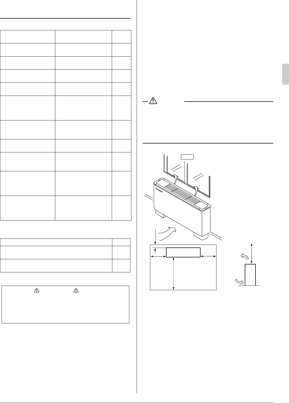
Base
FXLQ
Window
100 or
more
(FXLQ)
150 or
more
(FXNQ)
100 or
more
(FXLQ)
20 or
more
1000 or
more
1750 or
more
Air flow direction
Air inlet
direction
Front side
(length : mm)
01_EN_3P086154-2P.fm Page 3 Tuesday, March 31, 2009 5:26 PM