Specifications
Table Of Contents
- Cover
- Table of Contents
- Part 1 List of Functions
- Part 2 Specifications
- Part 3 Printed Circuit Board Connector Wiring Diagram
- Part 4 Function and Control
- Part 5 Operation Manual
- Part 6 Service Diagnosis
- 1. Caution for Diagnosis
- 2. Problem Symptoms and Measures
- 3. Service Check Function
- 4. Code Indication on the Remote Controller
- 5. Troubleshooting
- 5.1 Indoor Units
- 5.2 Outdoor Units
- 5.3 Indoor Unit PCB Abnormality A1
- 5.4 Freeze-up Protection Control or High Pressure Control A5
- 5.5 Fan Motor or Related Abnormality A6
- 5.6 Thermistor or Related Abnormality (Indoor Unit) C4,C9
- 5.7 Front Panel Open / Close Fault C7
- 5.8 Signal Transmission Error (between Indoor and OutdoorUnit) U4
- 5.9 Unspecified Voltage (between Indoor and Outdoor Units) UA
- 5.10 Freeze-up Protection Control A5
- 5.11 Outdoor Unit PCB Abnormality E1
- 5.12 OL Activation (Compressor Overload) E5
- 5.13 Compressor Lock E6
- 5.14 DC Fan Lock E7
- 5.15 Input Over Current Detection E8
- 5.16 Discharge Pipe Temperature Control F3
- 5.17 High Pressure Control in Cooling F6
- 5.18 Compressor Sensor System Abnormality H0
- 5.19 Position Sensor Abnormality H6
- 5.20 CT or Related Abnormality H8
- 5.21 Thermistor or Related Abnormality (Outdoor Unit) P4,J3,J6,J8,J9,H9
- 5.22 Electrical Box Temperature Rise L3
- 5.23 Radiation Fin Temperature Rise L4
- 5.24 Output Over Current Detection L5
- 5.25 Insufficient Gas U0
- 5.26 Low-voltage Detection or Over-voltage Detection U2
- 5.27 Signal Transmission Error (on Outdoor Unit PCB) U7
- 5.28 Anti-icing Function in Other Rooms / UnspecifiedVoltage (between Indoor and Outdoor Units) UA,UH
- 6. Check
- Part 7 Removal Procedure
- Part 8 Others
- Part 9 Appendix
- Index
- Drawings & Flow Charts

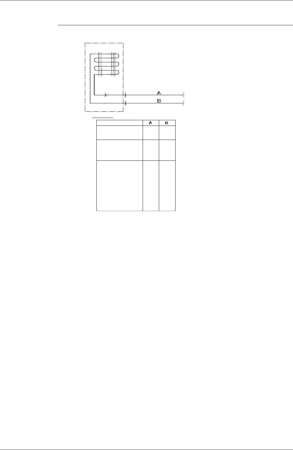
SiBE12-713 Piping Diagrams
Appendix 329
1.1.5 Ceiling Suspended Type
FHQ35/50/60BVV1B
Indoor heat exchanger
FHQ35BUV1B
FHQ35BVV1B
FCQ35BVE
FCQ35C7VEB
FHQ50, 60BUV1B
FHQ50, 60BVV1B
FCQ50, 60BVE
FBQ60BV1
FBQ60BVL
FCQ50, 60C7VEB
FUQ71, 100, 125BUV1B
FUQ71, 100, 125BVV1B
FHQ71, 100, 125BUV1B
FHQ71, 100, 125BVV1B
FAQ71, 100BUV1B
FAQ71, 100BVV1B
FXUQ70, 100, 125MV1
FHQ71, 100, 125BAV3B
FCQ71, 100, 125, 140DV3B
FCQ71, 100, 125, 140DAV3B
FCQ71BVE
FBQ71BV1
FBQ71BVL
FCQ71, 100, 125, 140C7VEB
FCQH71, 100, 125, 140C7VEB
Field piping
Field piping
C1220T-0
C1220T-0
6.4
6.4
9.5
φ
φ
12.7
15.9
9.5
To
Outdoor unit
MODEL
Indoor unit
4D037995G