Specifications
Table Of Contents
- Cover
- Table of Contents
- Part 1 List of Functions
- Part 2 Specifications
- Part 3 Printed Circuit Board Connector Wiring Diagram
- Part 4 Function and Control
- Part 5 Operation Manual
- Part 6 Service Diagnosis
- 1. Caution for Diagnosis
- 2. Problem Symptoms and Measures
- 3. Service Check Function
- 4. Code Indication on the Remote Controller
- 5. Troubleshooting
- 5.1 Indoor Units
- 5.2 Outdoor Units
- 5.3 Indoor Unit PCB Abnormality A1
- 5.4 Freeze-up Protection Control or High Pressure Control A5
- 5.5 Fan Motor or Related Abnormality A6
- 5.6 Thermistor or Related Abnormality (Indoor Unit) C4,C9
- 5.7 Front Panel Open / Close Fault C7
- 5.8 Signal Transmission Error (between Indoor and OutdoorUnit) U4
- 5.9 Unspecified Voltage (between Indoor and Outdoor Units) UA
- 5.10 Freeze-up Protection Control A5
- 5.11 Outdoor Unit PCB Abnormality E1
- 5.12 OL Activation (Compressor Overload) E5
- 5.13 Compressor Lock E6
- 5.14 DC Fan Lock E7
- 5.15 Input Over Current Detection E8
- 5.16 Discharge Pipe Temperature Control F3
- 5.17 High Pressure Control in Cooling F6
- 5.18 Compressor Sensor System Abnormality H0
- 5.19 Position Sensor Abnormality H6
- 5.20 CT or Related Abnormality H8
- 5.21 Thermistor or Related Abnormality (Outdoor Unit) P4,J3,J6,J8,J9,H9
- 5.22 Electrical Box Temperature Rise L3
- 5.23 Radiation Fin Temperature Rise L4
- 5.24 Output Over Current Detection L5
- 5.25 Insufficient Gas U0
- 5.26 Low-voltage Detection or Over-voltage Detection U2
- 5.27 Signal Transmission Error (on Outdoor Unit PCB) U7
- 5.28 Anti-icing Function in Other Rooms / UnspecifiedVoltage (between Indoor and Outdoor Units) UA,UH
- 6. Check
- Part 7 Removal Procedure
- Part 8 Others
- Part 9 Appendix
- Index
- Drawings & Flow Charts

SiBE12-713 Check
Service Diagnosis 283
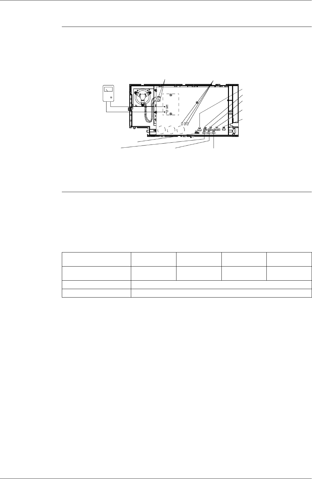
6.1.11 Capacitor Voltage Check
Check No.12 Before this checking, be sure to check the main circuit for short-circuit.
Checking the capacitor voltage
z
With the circuit breaker still on, measure the voltage according to the drawing of the model in
question. Be careful never to touch any live parts.
6.1.12 Power Transistor Check
Check No.13
Checking the power transistor
z
Never touch any live parts for at least 10 minutes after turning off the circuit breaker.
z
If unavoidably necessary to touch a live part, make sure the power transistor's supply
voltage is below 50 V using the tester.
z
For the UVW, make measurements at the Faston terminal on the board or the relay
connector.
THERMISTOR LEAD WIRE
(GAS PIPE)
THERMISTOR LEAD WIRE
(LIQUID PIPE)
REVERSING SOLENOID
VALVE LEAD WIRE
MULTIMETER
(DC. VOLTAGE RANGE)
REACTOR LEAD WIRE
COMPRESSOR LEAD WIRE
OL LEAD WIRE
THERMISTOR LEAD WIRE
FAN MOTOR LEAD WIRE
ELECTRONIC EXPANSION VALVE
COIL LEAD WIRE(ROOM-A)
ELECTRONIC EXPANSION VALVE COIL
LEAD WIRE(ROOM-B)
ELECTRONIC EXPANSION VALVE
COIL LEAD WIRE(ROOM-C)
(R5154)
Tester's negative terminal
Power transistor
(+)
UVW
Power transistor
(–)
UVW
Tester's positive terminal UVW
Power transistor
(+)
UVW
Power transistor
(–)
Normal resistance Several kohms to several Mohms
Abnormal resistance 0 or ∞