Installation manual
Table Of Contents

English 27
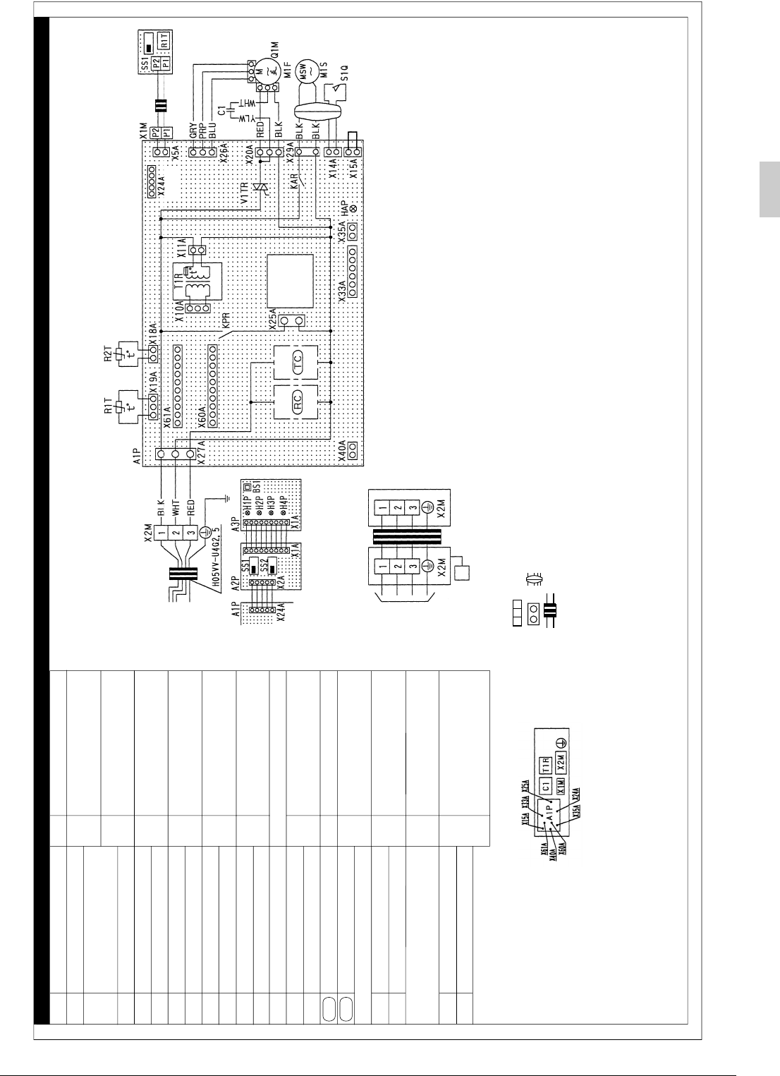
, : CONNECTOR
3D043825-1B FHQ71 • 100 • 125 BAV3B, FHQ71 • 100 • 125 BUV1B, FHQ71 • 100 • 125BVV1B
A1P
C1
HAP
KAR
KPR
M1F
M1S
Q1M
R1T
R2T
S1Q
T1R
V1TR
X1M
X2M
RC
TC
WIRED REMOTE CONTROLLER
CONNECTOR FOR OPTIONAL PARTS
WIRELESS REMOTE CONTROLLER
(RECEIVER/DISPLAY UNIT)
R1T
SS1
A2P
A3P
PRINTED CIRCUIT BOARD
PRINTED CIRCUIT BOARD
THERMISTOR (AIR)
SELECTOR SWITCH (MAIN/SUB)
BS1
H1P
H2P
H3P
H4P
SS1
SS2
PUSH BUTTON (ON/OFF)
LIGHT EMITTING DIODE
(ON-RED)
LIGHT EMITTING DIODE
(TIMER-GREEN)
LIGHT EMITTING DIODE
(FILTER SIGN-RED)
LIGHT EMITTING DIODE
(DEFROST-ORANGE)
SELECTOR SWITCH
(MAIN/SUB)
SELECTOR SWITCH
(WIRELESS ADDRESS SET)
PRINTED CIRCUIT BOARD
CAPACITOR (M1F)
LIGHT EMITTING DIODE
(SERVICE MONITOR GREEN)
MAGNETIC RELAY (M1S)
MAGNETIC RELAY (M1P)
MOTOR (INDOOR FAN)
MOTOR (SWING FLAP)
THERMO SWITCH (M1F EMBEDDED)
THERMISTOR (AIR)
THERMISTOR (COIL)
LIMIT SWITCH (SWING FLAP)
TRANSFORMER (220-240V/22V)
PHASE CONTROL CIRCUIT
TERMINAL BLOCK
TERMINAL BLOCK
SIGNAL RECEIVER CIRCUIT
SIGNAL TRANSMISSION CIRCUIT
X15A
X25A
X33A
X35A
X40A
X60A
X61A
CONNECTOR
(FLOAT SWITCH)
CONNECTOR(DRAIN PUMP)
CONNECTOR
(ADAPTOR FOR WIRING)
CONNECTOR
(GROUP CONTROL ADAPTOR)
CONNECTOR
(ON/OFF INPUT FROM OUTSIDE)
CONNECTOR
(INTERFACE ADAPTOR
FOR SKY AIR SERIES)
2. : FIELD WIRING
3. IN CASE USING CENTRAL REMOTE CONTROLLER, CONNECT IT TO THE UNIT
IN ACCORDANCE WITH THE ATTACHED INSTALLATION MANUAL.
4. X24A IS CONNECTED WHEN THE WIRELESS REMOTE CONTROLLER KIT IS BEING USED.
5. REMOTE CONTROLLER MODEL VARIES ACCORDING TO THE COMBINATION SYSTEM, CONFIRM ENGINEERING
MATERIALS AND CATALOGS, ETC. BEFORE CONNECTING.
6. IN CASE INSTALLING THE DRAIN PUMP(M1P), REMOVE THE JUMPER CONNECTOR OF X15A AND EXECUTE THE
ADDITIONAL WIRING FOR FLOAT SWITCH AND DRAIN PUMP.
7. SYMBOLS SHOW AS FOLLOWS: RED: RED BLK: BLACK WHT: WHITE YLW: YELLOW PRP:PURPLE GRY: GRAY
BLU: BLUE
: TERMINAL1.
NOTES)
WIRING DIAGRAM
4
11
8
1
10
7
56
1
2
3
2
10
Fig.35
01_EN_3PN06588-4M.fm Page 27 Monday, December 19, 2011 7:04 PM