Installation manual
Table Of Contents

26 English
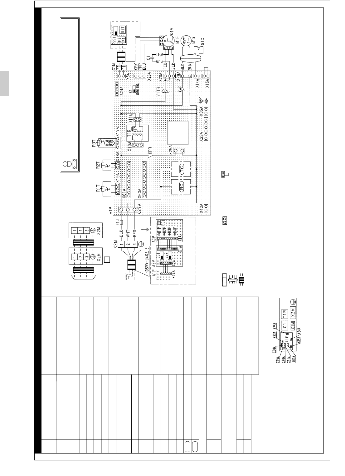
3D074574-1 FHQ35 • 50 • 60 BVV1B, FHQ35 • 50 • 60BWV1B
: CONNECTOR DISCRIMINATION COLOUR FOR COMPONENTS.
: CONNECTOR COLOUR FOR COMPONENTS.
: CONNECTOR COLOUR FOR PRINTED CIRCUIT BOARD.
2. : FIELD WIRING
3. IN CASE OF SIMULTANEOUS OPERATION INDOOR UNIT SYSTEM, SEE THE INDOOR UNIT WIRING ONLY.
4. FOR THE DETAIL, SEE WIRING DIA-GRAM ATTACHED TO OUTDOOR UNIT.
5. IN CASE USING CENTRAL REMOTE CONTROLLER, CONNECT IT TO THE UNIT IN ACCORDANCE WITH THE ATTACHED
INSTALLATION MANUAL.
6. IN CASE OF CONNECTION UNITS VARIES ACCORDING TO THE COMBINATION SYSTEM, CONFIRM TECHNICAL GUIDE AND
CATALOGS, ETC. BEFORE CONNECTING.
7. IN CASE OF MAIN/SUB CHANGEDVER, SEE THE INSTALLATION MANUAL ATTACHED TO REMOTE CONTROLLER.
8. IN CASE INSTALLING THE DRAIN PUMP(M1P), REMOVE THE JUMPER CONNECTOR OF X15A AND EXECUTE THE ADDITIONAL
WIRING FOR FLOAT SWITCH AND DRAIN PUMP.
9. SYMBOLS SHOWS AS FOLLOWS: BLK: BLACK RED: RED BLU: BLUE WHT: WHITE PNK: PINK YLW: YELLOW GRY: GRAY
PRP: PURPLE.
10. SHOWS ONLY IN CASE OF PROTECTED PIPES, USE H07RN-F IN CASE OF NO PROTECTION.
: TERMINAL BLOCK : CONNECTOR : SHORT CIRCUIT CONNECTOR
:
CONNECTOR
1.
NOTES)
A1P
C1
F1U
HAP
KAR
KPR
M1F
M1S
Q1M
R1T
R2T
R3T
S1C
SS1
T1R
V1TR
X1M
X2M
RC
TC
WIRED REMOTE CONTROLLER
CONNECTOR FOR OPTIONAL PARTS
WIRELESS REMOTE CONTROLLER
(RECEIVER/DISPLAY UNIT)
R1T
SS1
A2P
A3P
PRINTED CIRCUIT BOARD
PRINTED CIRCUIT BOARD
THERMISTOR (AIR)
SELECTOR SWITCH (MAIN/SUB)
BS1
H1P
H2P
H3P
H4P
SS1
SS2
PUSH BUTTON SWITCH
(ON/OFF)
PILOT LAMP (ON-RED)
PILOT LAMP
(TIMER-GREEN)
PILOT LAMP
(FILTER SIGN-RED)
PILOT LAMP
(DEFROST-ORANGE)
SELECTOR SWITCH
(MAIN/SUB)
SELECTOR SWITCH
(WIRELESS ADDRESS SET)
PRINTED CIRCUIT BOARD
CAPACITOR (M1F)
FUSE (F5A 250V)
FLASHING LAMP
(SERVICE MONITOR GREEN)
MAGNETIC RELAY (M1S)
MAGNETIC RELAY (M1P)
MOTOR (INDOOR FAN)
MOTOR (SWING FLAP)
THERMAL PROTECTOR (M1F EMBEDDED)
THERMISTOR (AIR)
THERMISTOR (COIL-1)
THERMISTOR (COIL-2)
LIMIT SWITCH (SWING FLAP)
SELECTOR SWITCH (EMERGENCY)
TRANSFORMER (220-240V/22V)
TRIAC (PHASE CONTROL CIRCUIT)
TERMINAL BLOCK
TERMINAL BLOCK
SIGNAL RECEIVER CIRCUIT
SIGNAL TRANSMISSION CIRCUIT
X15A
X24A
X25A
X33A
X35A
X40A
X60A
X61A
CONNECTOR
(FLOAT SWITCH)
CONNECTOR
(WIRELESS REMOTE
CONTROLLER)
CONNECTOR (DRAIN PUMP)
CONNECTOR
(ADAPTOR FOR WIRING)
CONNECTOR
(GROUP CONTROL ADAPTOR)
CONNECTOR
(ON/OFF INPUT FROM OUTSIDE)
CONNECTOR
(INTERFACE ADAPTOR
FOR SKY AIR SERIES)
WIRING DIAGRAM
1
56
42
110
8
12
13
7
14
15
15
3
14
9
11
Fig.34
01_EN_3PN06588-4M.fm Page 26 Monday, December 19, 2011 7:04 PM