Service manual

Table Of Contents
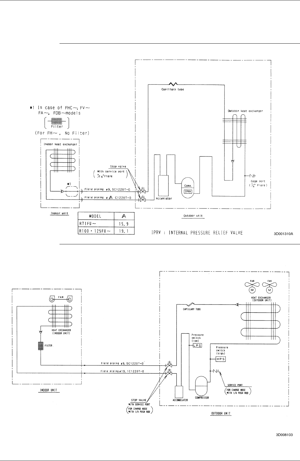
Piping Diagrams Si42-107
88 Appendix
 ,5
 "&"
',(-C0'F',(-C(('F',(-C'
',(/-C(/-