Service manual

Table Of Contents
Optional accessories Si42-107
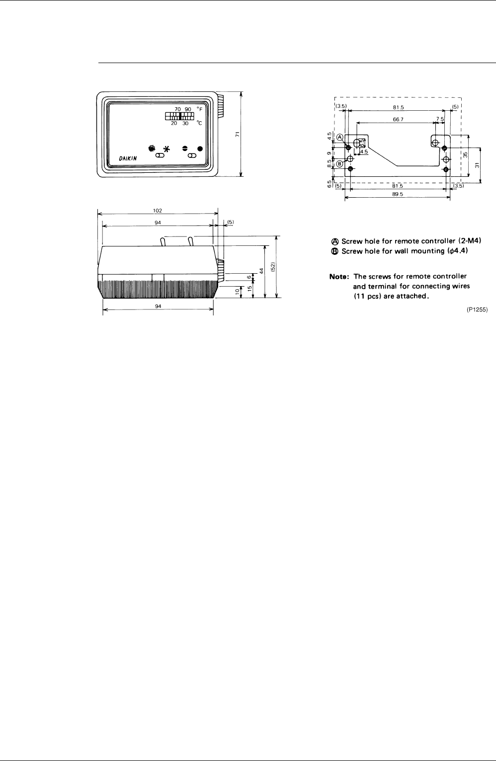
20 Remote Controller (Optional Accessories)
 5""6-0798
 ,"5""
-079