Service manual

Table Of Contents
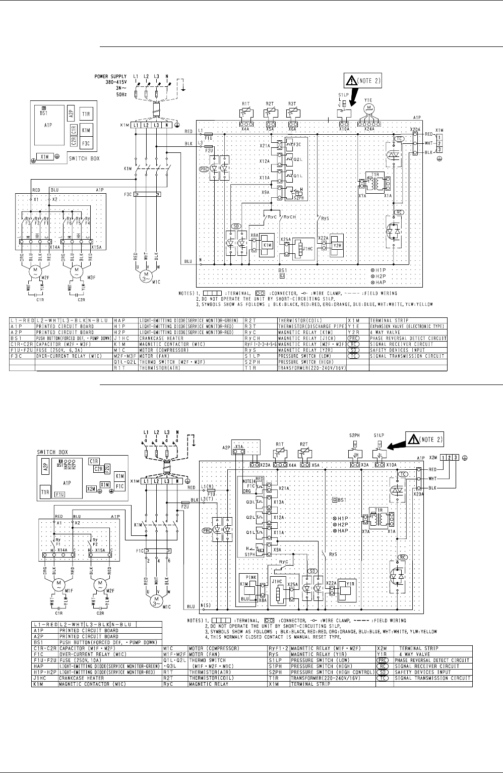
Si42-107 Wiring Diagrams
Appendix 275
 &
.(-.
.((-.F.((-.%
C : 3D014604E
C : 3D028900
Y1
3N
~
50Hz
380 - 415V
YAL
3N
~
60Hz
380V
POWER SUPPLY