Service manual

Table Of Contents
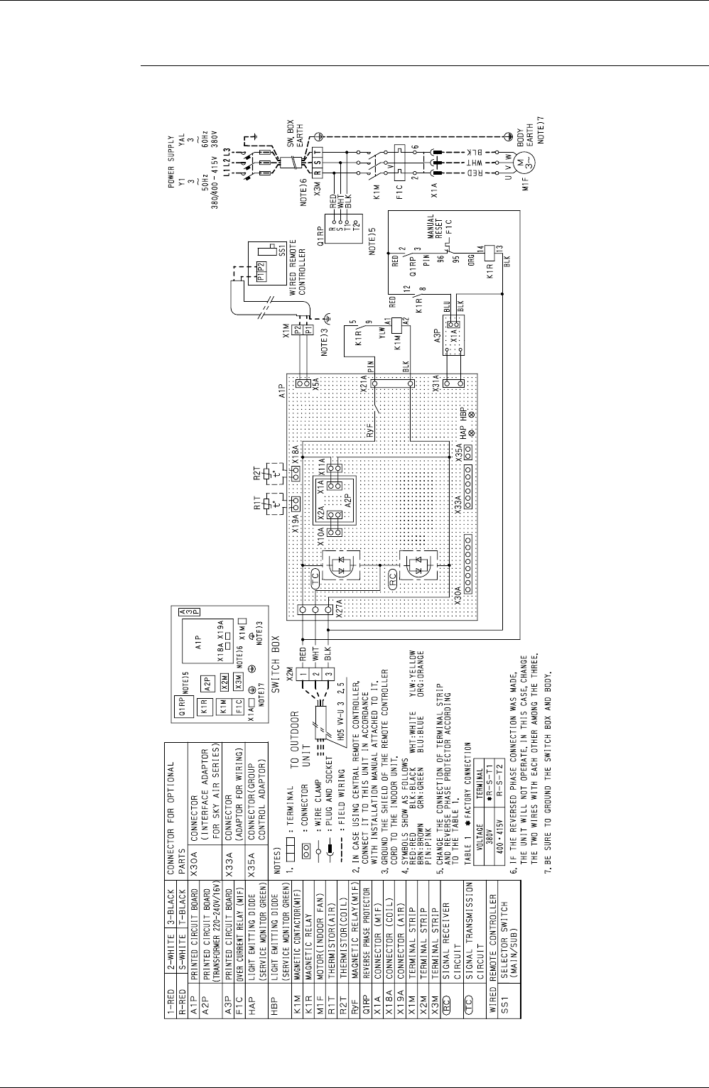
Si42-107 Wiring Diagrams
Appendix 271
 ',.7-%+"
',.(/-%.F',.(1-%.F',.(-%.F',.(1-%.%F',.(-%.%
C : 3D024639E