Service manual

Table Of Contents
Si42-107 Optional accessories
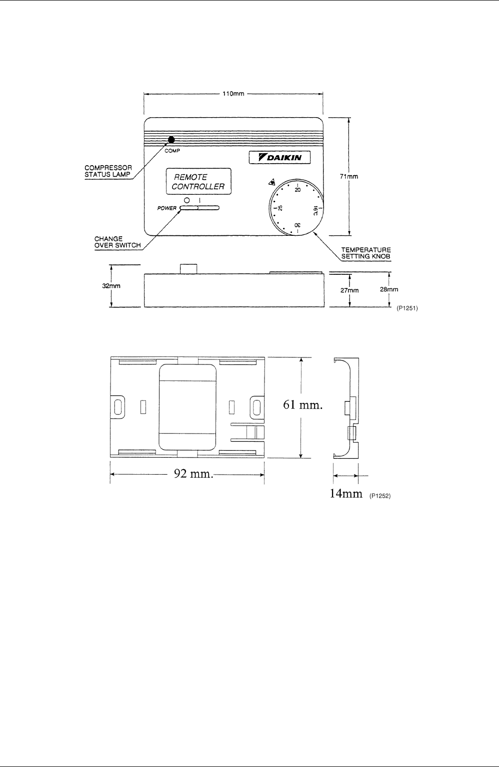
Remote Controller (Optional Accessories) 17
 5""6-078
*'+,-6046=
 5""
 )"