Service manual

Table Of Contents
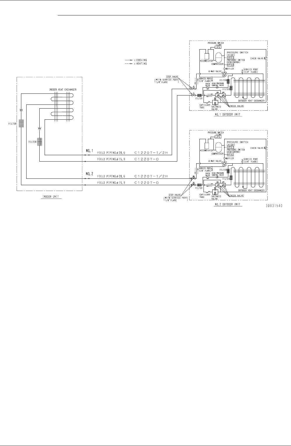
Piping Diagrams Si42-107
266 Appendix
',.(-6%84%C.(-4%2
',.(-6%8.%C.(-.%2