Service manual

Table Of Contents
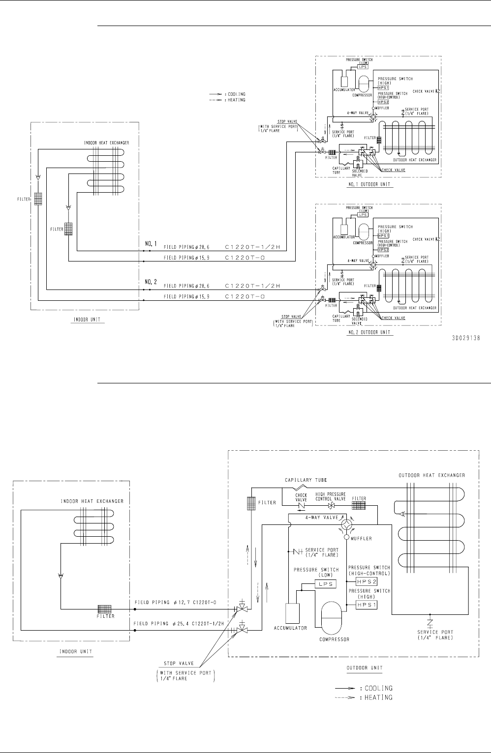
Piping Diagrams Si42-107
264 Appendix
',.(-6%8.C.(-.2
 /()*
',.(1-6%84%C.((-4%
',.(1-6%8.%C.((-.%
3D030157