Service manual

Table Of Contents
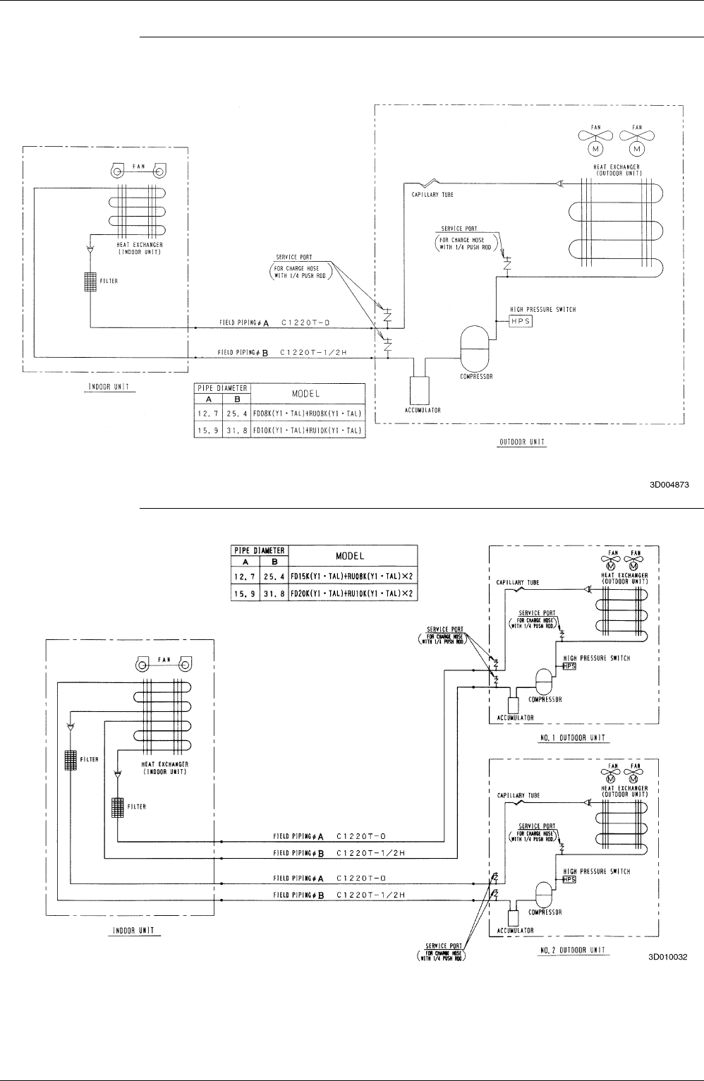
Si42-107 Piping Diagrams
Appendix 89
',(1-C(1-F',(-C(-
',-C(1-2F',(-C(-2