Specifications
Table Of Contents

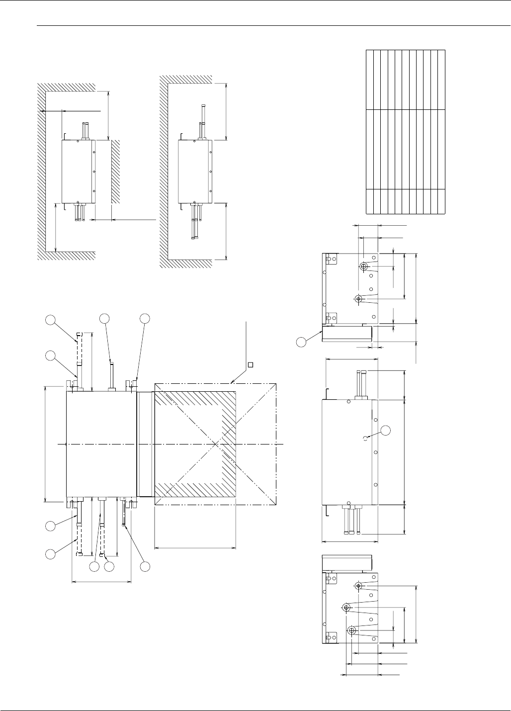
Dimensions EDUS39-900-F8
4 BSVQ-P
BSVQ60PVJU
(Servicing space)
(Suspension bolt pitch)
(Suspension bolt pitch)
8-5/8
(8-5/8)
(8-9/16)
12
16-7/8
(8-9/16)
18 (Note 2.)
Inspection door
10-3/16
8-3/8
(4-5/16)
15-1/4
7-9/16
3/8
3-13/16
1-7/8
4-5/8
7/8
8-1/8
(4-5/16)
2-13/16
5-3/16
2-13/16
2-1/16
6-5/8
1-7/8
2-5/8
(Note 1.)
Location of unit's Name Plate
…
Right side of electric box
Servicing space
(Servicing space)
(Servicing space)
2 or more
3 or more
(Servicing space)
10 or more
(Servicing space)
10 or more
(In case of use Attached pipe)
(Servicing space)
13-3/4 or more
(Servicing space)
13-3/4 or more
Notes) 1. Electric box can also be fixed on the other side
of the unit.
2. Be sure to install an inspection door at electric
box side.
3. Attached pipe is only used in case of connecting
with indoor unit capacity index 54 or more and
60 or less.
4. Small sound of refrigerant will be made, which
may be disturbing.
Do not install it at the place such as bedroom
under roof.
φ
3/8 brazing connection
Description
φ
3/8 brazing connection
Liquid pipe connection port
Suction gas pipe connection port
Electric box (Note 1.)
Grounding terminal
φ
5/8 brazing connection
φ
5/8 brazing connection
φ
5/8 brazing connection
φ
3/4 brazing connection
M4
M8~M10
Liquid pipe connection port
Suspension brackets
Number
1
2
3
4
5
6
7
8
9
10
Attached pipe (2) (Note. 3)
Attached pipe (1) (Note. 3)
Part name
φ
1/2 brazing connection
HP/LP gas pipe connection port
Gas pipe connection port
19
2
10
3
4 9
5
7
6
8
3D058237










