Specifications
Table Of Contents

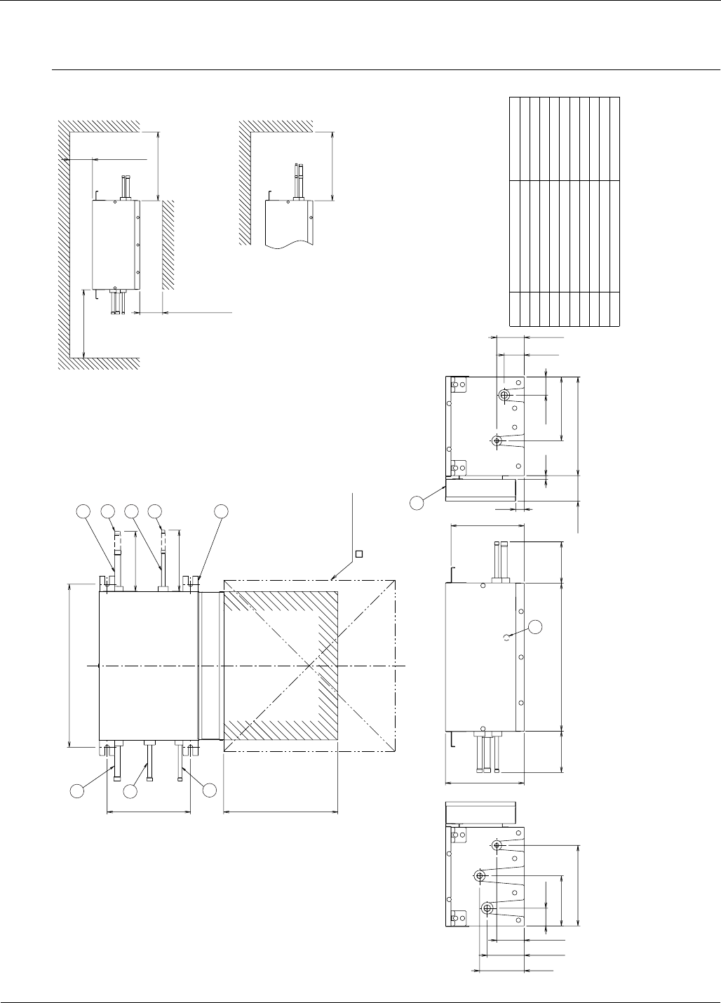
EDUS39-900-F8 Dimensions
BSVQ-P 3
2. Dimensions
BSVQ36PVJU
φ
3/8 brazing connection
Description
φ
3/8 brazing connection
Liquid pipe connection port
Suction gas pipe connection port
Electric box (Note 1.)
Grounding terminal
φ
1/4 brazing connection
φ
5/8 brazing connection
φ
5/8 brazing connection
φ
1/2 brazing connection
M4
M8~M10
Liquid pipe connection port
Suspension brackets
Number
1
2
3
4
5
6
7
8
9
10
Attached pipe (2) (Note. 3)
Attached pipe (1) (Note. 3)
Part name
φ
1/2 brazing connection
HP/LP gas pipe connection port
Gas pipe connection port
(Servicing space)
Servicing space
(Servicing space)
2 or more
3 or more
(Servicing space)
10 or more
(Servicing space)
10 or more
(In case of use Attached pipe)
(Servicing space)
12 or more
(Suspension bolt pitch)
(Suspension bolt pitch)
(Servicing space)
18
(Note 2.)
8-5/812
(6-3/16)
16-7/8
(6-5/16)
Inspection door
Location of unit's Name Plate
…
Right side of electric box
(Note 1.)
1-7/8
2-5/88-3/8
(4-5/16)
8-1/8
6-5/8
1-7/8
15-1/4
7/8
2-1/16
10-3/16
2-13/16
(4-5/16)
4-5/8
2-13/16
5-3/16
3/8
7-9/16
3-13/16
Notes) 1. Electric box can also be fixed on the other side
of the unit.
2. Be sure to install an inspection door at electric
box side.
3. Attached pipe is only used in case of
connecting with a 07~18 class indoor unit.
4. Small sound of refrigerant will be made, which
may be disturbing.
Do not install it at the place such as bedroom
under roof.
1
2
3
4
9
5
10
7
8
6
3D058236










