Installation Instructions

25English
Installation Instructions
Making the Electrical Connection, cont.
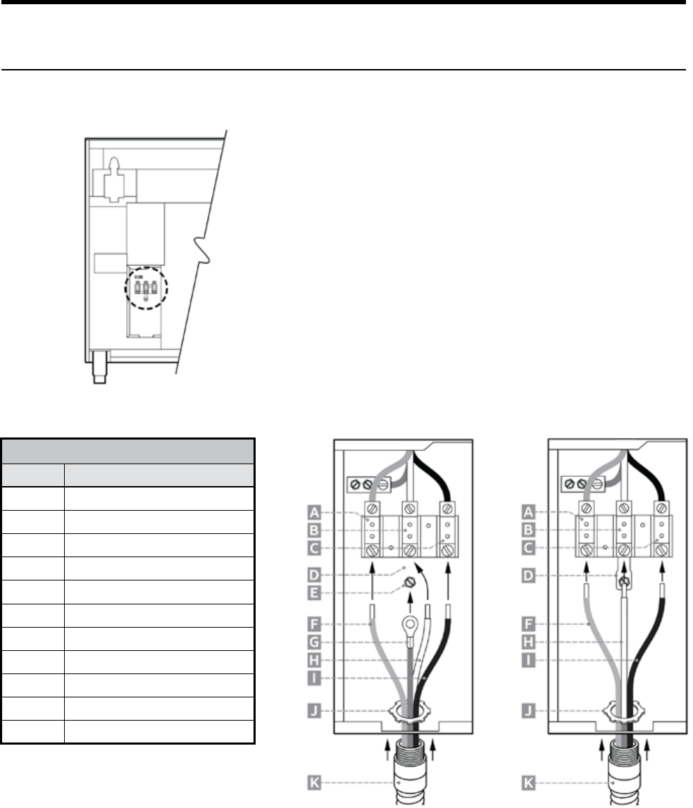
Connecting the Conduit to the Range
CONDUIT-TO-RANGE CONNECTIONS
Callout Description
A
D
E
F
Red wire
H
White wire
I
K
2. (4-wire only)-
3.
5.
over the wires, then thread and tighten it onto the strain
8.
9. (4-wire only)-
Re-attach the electrical-access cover.
3-Wire Connection
(if local code allows)
4-Wire Connection










