Installation Instructions

22 English
Installation Instructions
Preparing for Installation, cont.
Installing the Anti-tip Bracket and Foot, cont.
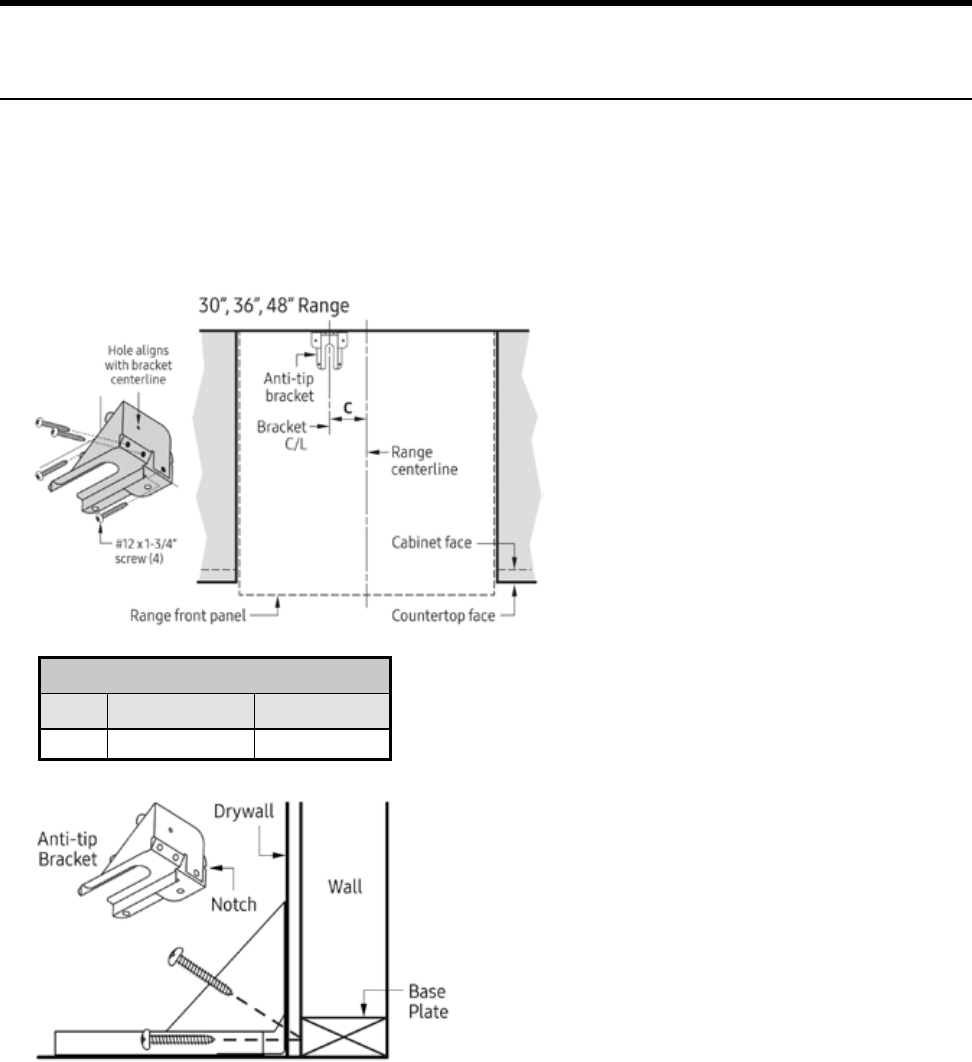
Wall-Mounting the Anti-tip Bracket


-
ness will not impede secure threading.
5. Having determined the wall-mounting is suitable, place the bracket against the wall in the mounting
location.
 
surfaces shown.
 
ANTI-TIP BRACKET PLACEMENT
Dim.
30, 36 48
 
 
cutout dimensions, determine the position of the range's

position.
 

against the wall.
3. 
sides of the bracket.
 

Drill just deep enough to see if the bit contacts the base
plate. If there is contact, you can wall-mount the bracket.
If there is no contact, wall mounting is unsuitable, and

adding base material above the notches.