Installation Instructions

17English
Installation Requirements
Location Requirements
Gas/Electrical Range Hookups (HDPRS/HDERS 30”, 36”, 48”)
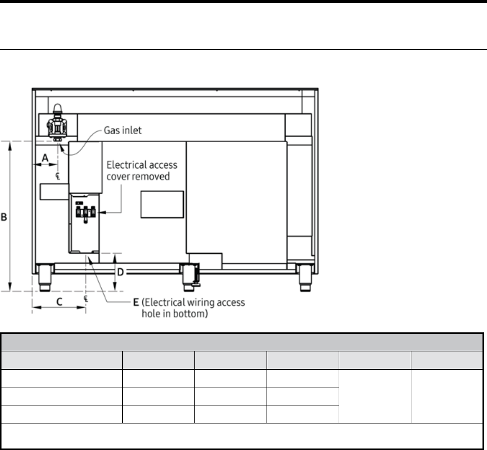
Gas/Electrical Service Inlets
•
allowed gas-valve locations.)
•
on/off.
•
•
placement requirements for the range.
•
being disconnected.
GAS-/ELECTRICAL-ACCESS DIMENSIONS
Model A B* C D* E**










