Installation Instructions

16 English
Installation Requirements
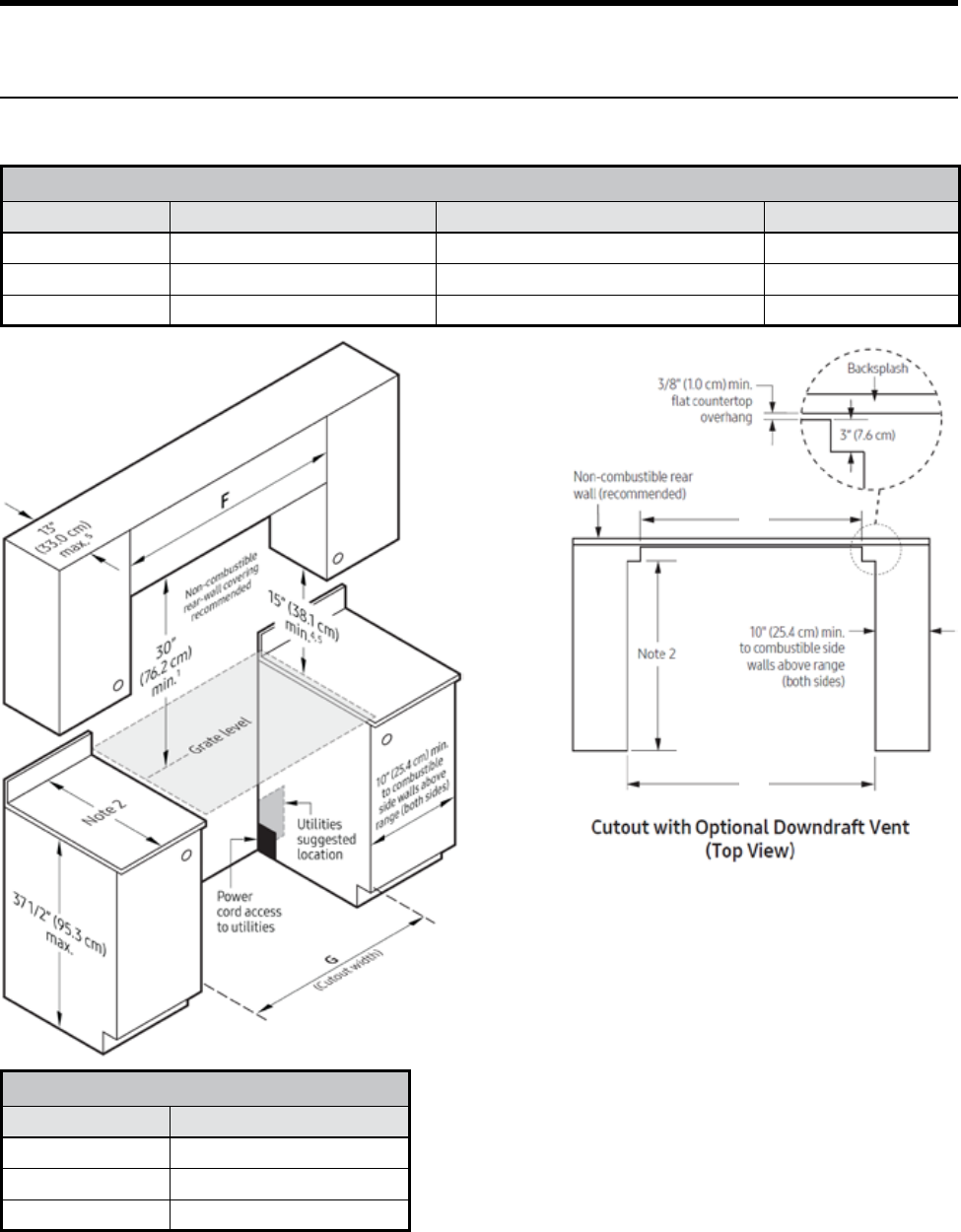
CUTOUT DIMENSIONS
Model F—recommended/min G—min/max H
General Requirements, cont.
Cabinet Dimensions
Standard Cutout with
Range Hood
Vertical from range grate level to combustible overhead
-
cations for minimum required clearances.
but cabinet face must not protrude beyond the rear of
Product Dimensions
3.
Vertical from grate level to combustible surface.
5.
APPROVED DOWNDRAFT VENT MODELS
Range Downdraft Vent
IMPORTANT:-
tions for duct and electrical installation requirements.
G
H










