Installation Instructions

15English
Installation Requirements
General Requirements, cont.
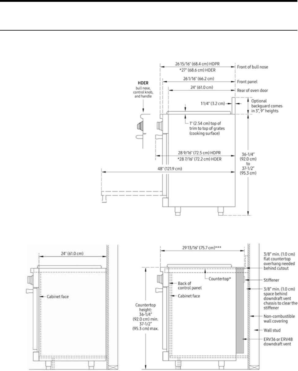
Product Dimensions (tolerances: ±1/16” ±1.6 mm)
HDPRS/HDERS30HDPRS/HDERS36HDPRS/HDERS48
Range-Only Installation Range-With-Downdraft Installation
Critical Depth/Height Dimensions










