Installation Instructions

21English
Preparing for Installation, cont.
Installing the Anti-tip Bracket and Foot, cont.
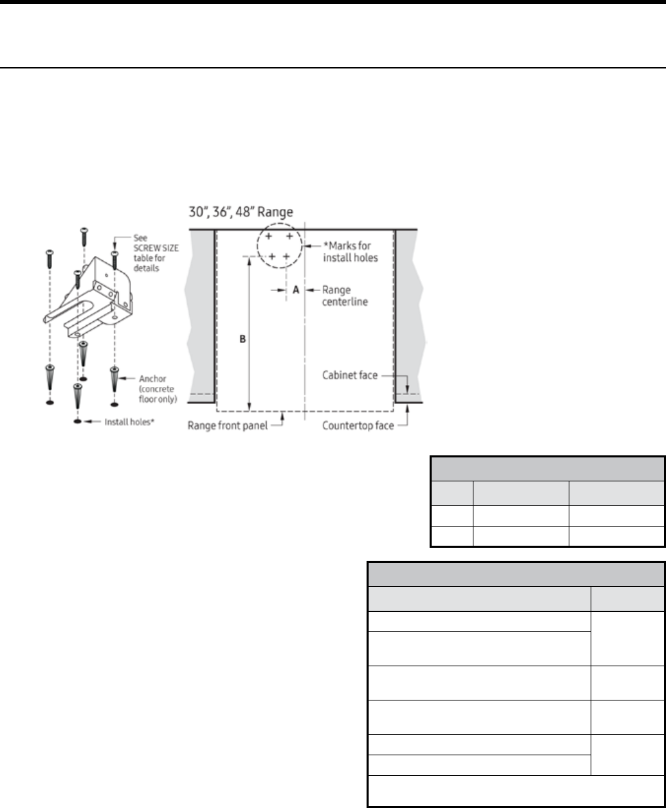
Floor-Mounting the Anti-tip Bracket, cont.
•
•
Attaching the Bracket to a Concrete Floor
bit. This hole length is longer than the anchor.
3.
Align the bracket and anchor holes, then insert
and tighten the screws.
Attaching the Bracket to a Wood Sub-Floor
drilling pilot holes.
holes, then insert and tighten the screws.
Installation Instructions
SCREW SIZE
Sub-oor Type/Floor Cover Thickness Screw Size
thick
ANTI-TIP BRACKET PLACEMENT
Dim.
30, 36 48
A










