Installation Instructions

17English
Installation Requirements
Location Requirements
Gas/Electrical Range Hookups (HDPRS/HDERS 30”, 36”, 48”)
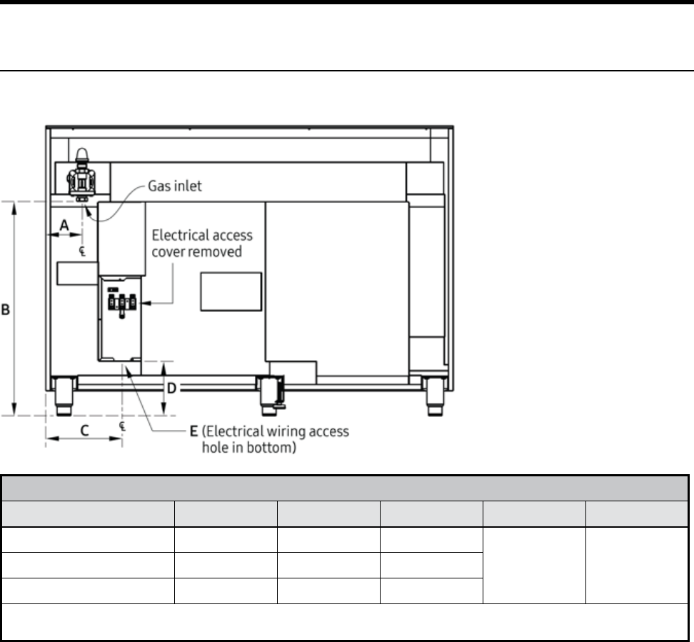
Gas/Electrical Service Inlets

allowed gas-valve locations.)

on/off.


placement requirements for the range.

being disconnected.
GAS-/ELECTRICAL-ACCESS DIMENSIONS
Model A B* C D* E**
   
    
   


