Quick Start Guide

25English
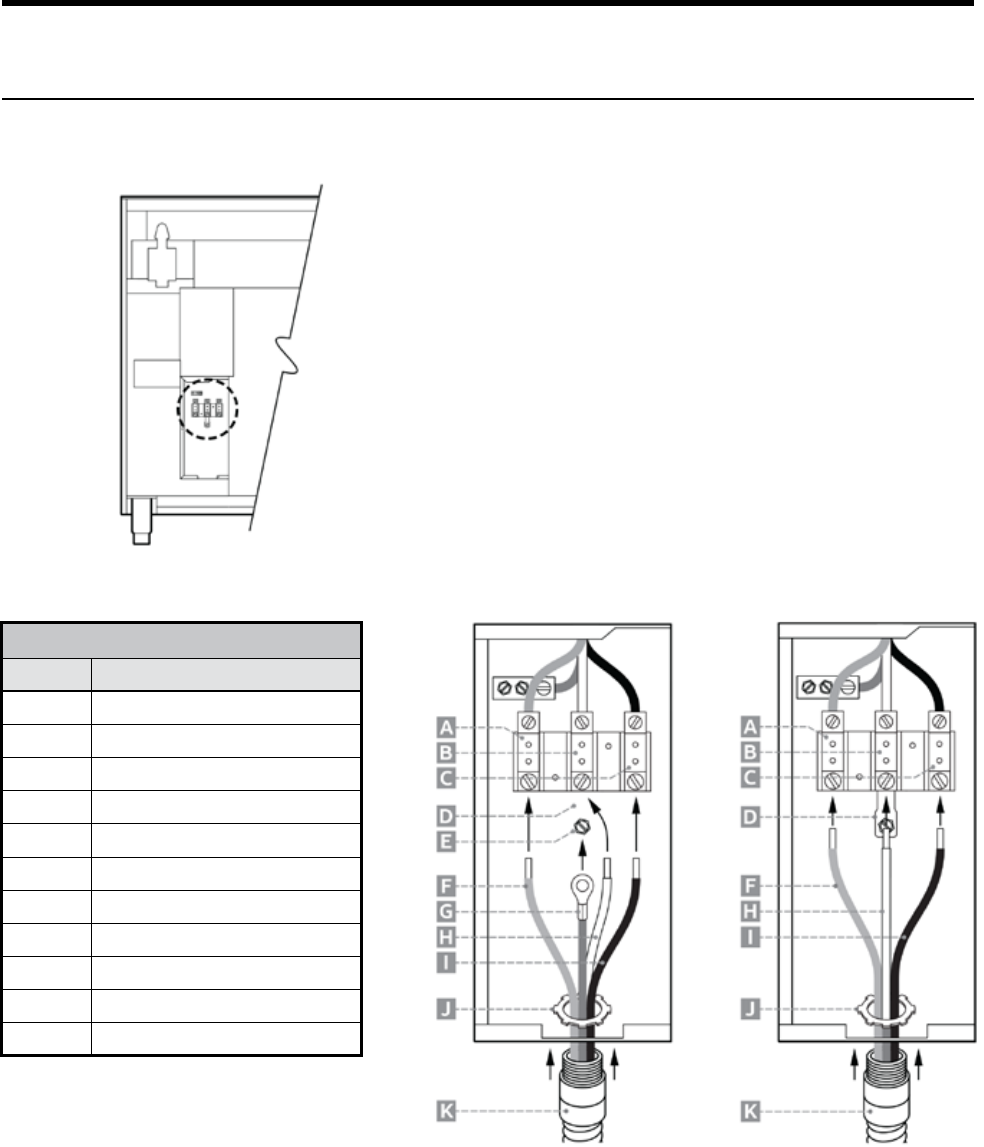
Installation Instructions
Making the Electrical Connection, cont.
Connecting the Conduit to the Range

CONDUIT-TO-RANGE CONNECTIONS
Callout Description
A



D

E

F
Red wire

H
White wire
I


K

 
2. (4-wire only)-

3. 
 

5. 
over the wires, then thread and tighten it onto the strain

 

 
8. 
9. (4-wire only)-

 Re-attach the electrical-access cover.
3-Wire Connection
(if local code allows)
4-Wire Connection