Planning Guide [618 KB]

PLANNING
GUIDE
DWD, ERWD, EWD, IWD, MRWD,
MWDH, MWDV, OWD, RWDV
24”, 27”, 30”, 36” Wide
Warming Drawers
Document # PG02-002
Revised 01/18/12 Page 2/3
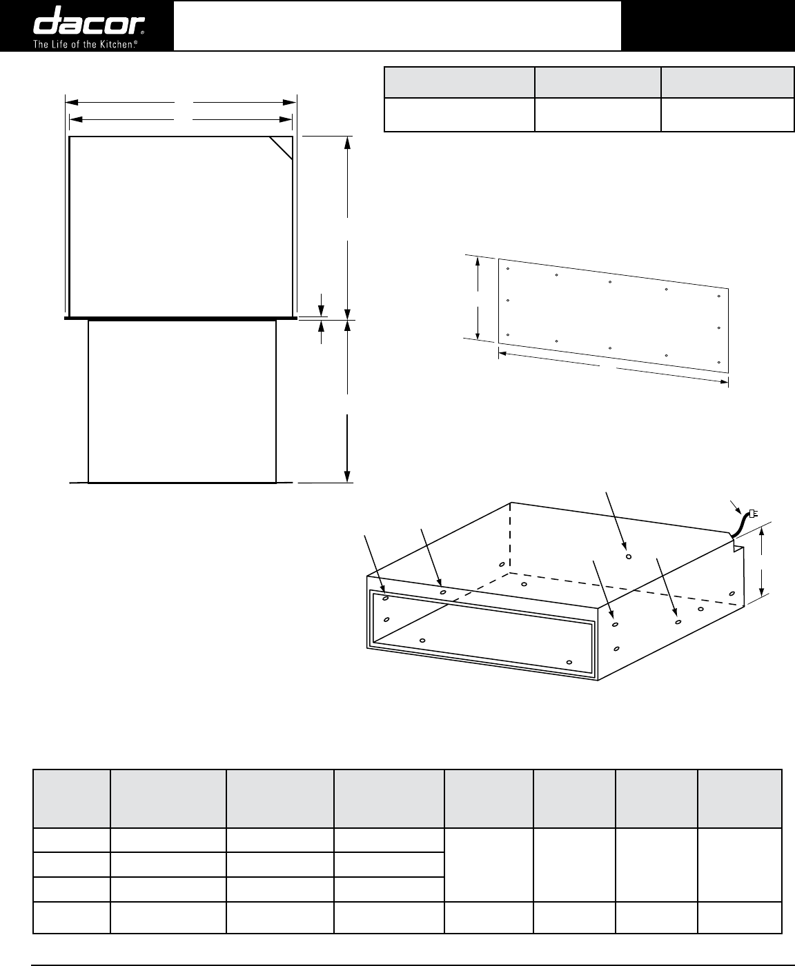
D
A
DRAWER FACE DIMENSIONS
Chassis
Drawer open
F
E
5/16”
(8 mm)
B
C
OVERALL DIMENSIONS - IWD/OWD SERIES
TOP VIEW
CHASSIS DIMENSIONS
40" (101.6 cm)
3 prong
120 Vac power cord
Chassis without
drawer installed
Mounting hole,
** = OWD24 mounting holes
**
**
**
**
9 places
G
Model
(A) Dimension
Drawer Face Width
(B) Dimension
Chassis Width
(C) Dimension
Chassis Face
Width
(D)
Dimension
Drawer Face
Height
(E)
Dimension
Chassis
Depth
(F)
Dimension
Drawer
Depth
(G)
Dimension
Chassis
Height
IWD24 22 5/16” (56.7 cm) 22 1/4” (56.5 cm) 22 3/8” (56.8 cm)
8 15/16”
(22.7 cm)
23 3/8”
(59.4 cm)
23 13/16”
(60.5 cm)
9 1/16”
(23.0 cm)
IWD27 25 5/16” (64.3 cm) 25 1/4” (64.1 cm) 25 3/8” (64.5 cm)
IWD30 28 5/16” (71.9 cm) 28 1/4” (71.8 cm) 28 3/8” (72.1 cm)
OWD24 22 1/2” (57.1 cm) 22 1/2” (57.1 cm) 22 1/2” (57.1 cm)
11 7/8”
(30.2 cm)
20”
(50.8 cm)
18”
(45.7 cm)
11 7/8”
(30.2 cm)
Product tolerances: ±1/16” (±1.6 mm) unless otherwise stated
Electrical Circuit Required Total Connected Load
Minimum Ambient
Operating Temperature
120 Vac, 60 Hz, 15 Amp.
grounded, dedicated circuit
4.0 Amp. @
120 Vac, 60 Hz.
32°F (0°C)



