Planning Guide
Manuals
Brands
Dacor Manuals
Warming Drawers
Dacor Modernist 30" Panel-Ready Warming Drawer
1
2
3
4
5
6
7
8
9
10
Table Of Contents
Slide Number 1
Slide Number 2
Slide Number 3
Slide Number 4
Slide Number 5
Slide Number 6
Slide Number 7
Slide Number 8
Slide Number 9
Slide Number 10
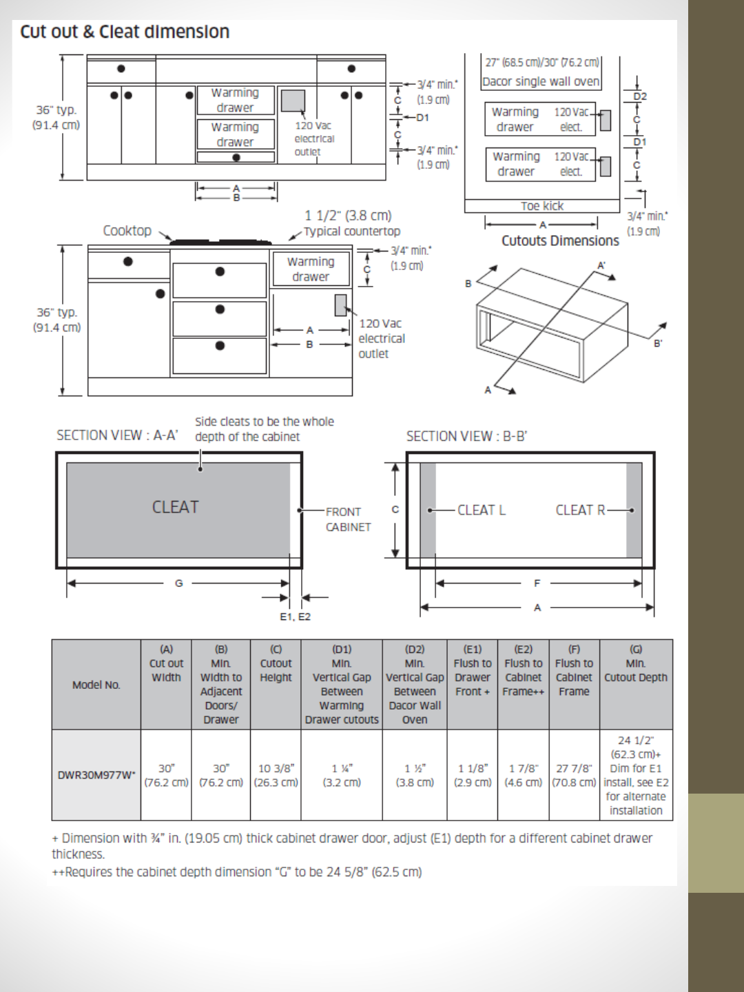
Cabin
et
dim
ensions
1
...
...
5
6
7
8
9
...
10