Installation Guide

Parts List
DESCRIPTION
PART NUMBER
QTY
ITEM
HHCS,1/2-13 UNC,1-1/2,GRD8,YZ
10-10334
4
1
.250 x 1.00 x 1.50" RND HOLE SPACERCM-SP50
102
WASHER,LOCK,1/2,YZ
30-0015363
NUT,HEX,1/2-13 UNC,GRD8,YZ
20-0017144
HHCS,M12x1.25,35,CL10.9,YZ
10-102752
5
GROSS LOAD CAPACITY WHEN USED AS A WEIGHT CARRYING HITCH: LBS. TRAILER WEIGHT & LBS. TONGUE WEIGHT.
GROSS LOAD CAPACITY WHEN USED AS A WEIGHT DISTRIBUTION HITCH: LBS. TRAILER WEIGHT & LBS. TONGUE WEIGHT
***DO NOT EXCEED VEHICLE MANUFACTURER'S RECOMMENDED TOWING CAPACITY.***
HAVING INSTALLATION QUESTIONS? CALL TECHNICAL SUPPORT AT 877-287-8634
HITCH WEIGHT: LBS.
INSTALL TIME: MINUTES
INSTALL NOTES:
- DRILLING REQUIRED
INSTALLATION STEPS
PERIODICALLY CHECK THIS RECEIVER HITCH TO ENSURE THAT ALL FASTENERS
ARE TIGHT AND THAT ALL STRUCTURAL COMPONENTS ARE SOUND.
Curt Manufacturing Inc., warrants this product to be free of defects in material and/or workmanship at the time of retail purchase by the original purchaser. If the product is found to be defective,
Curt Manufacturing Inc., may repair or replace the product, at their option, when the product is returned, prepaid, with proof of purchase. Alteration to, misuse of, or improper installation of
this product voids the warranty. Curt Manufacturing Inc.'s liability is limited to repair or replacement of products found to be defective, and specifically excludes liability for incidental or
consequential loss or damage.
5,000 500
40
30
7,500
750
6/29/2020
13184
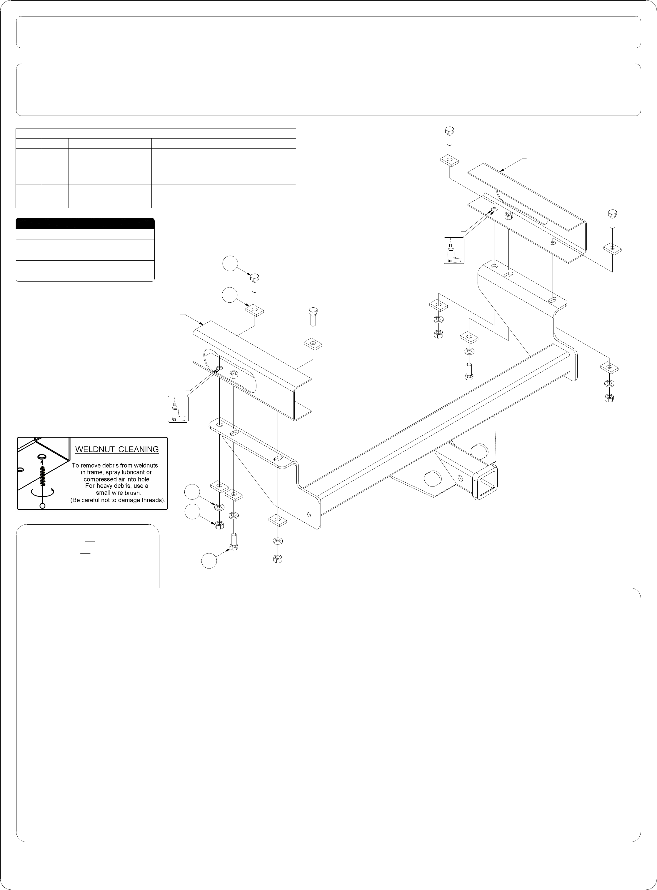
1. Raise the hitch into position by aligning the forward slot in the side plate with the weldnut in the frame and secure
with a CM-SP50 spacer, lock washer and M12 x 1.25 bolt as shown.
2. Install a 1/2-13 x 1-1/2 carriage bolt, 1/2" lock washer and CM-SP50 spacer from above into each of the rearmost
slots in the side plates. Secure the hitch to the frame using a CM-SP50 spacer, 1/2" lock washer and hex flange nut
as shown.
3. Using the hitch as a template, drill a 17/32" hole in the frame, through the forwardmost hole of both sideplates
as shown.
4. Install a 1/2-13 x 1-1/2 carriage bolt, 1/2" lock washer and CM-SP50 spacer from above into each of the forwardmost
holes in the side plates. Secure the hitch to the frame using a CM-SP50 spacer, 1/2" lock washer and hex flange nut
as shown.
5. Torque all M12 hardware to 86 ft-lbs. Torque all 1/2" hardware to 110 ft-lbs.
1
2
5
3
4
DRIVER SIDE
FRAME RAIL
PASSENGER SIDE
FRAME RAIL
TOOLS REQUIRED
19mm & 3/4" SOCKETS
12" EXTENSION
RATCHET
TORQUE WRENCH
DRILL AND 17/32" BIT
DRILL HOLE
DRILL HOLE
1 ADDED COMPATIBLE WITH TOMMYGATE TO HEADING
-
4/24/2009
JWT
2
CHG TO GRADE 8 TORQUE SPECS
-
10/8/2012
AJP
3
CORRECT STEP 1 VERBAGE TO STATE M12 BOLT INSTEAD OF M10
-
11/15/2012
RJK
4 UPDATED HARDWARE DESCRIPTIONS/NUMBERS
6641
6/29/2020 CJW
REVISION HISTORY
REV DESCRIPTION INC # DATE APPROVED
2000-2006 TOYOTA TUNDRA
COMPATIBLE WITH TOMMYGATE

