Product Manual

Curt Manufacturing Inc., warrants this product to be free of defects in material and/or workmanship at the time of retail purchase by the original purchaser. If the product is found to be defective,
Curt Manufacturing Inc., may repair or replace the product, at their option, when the product is returned, prepaid, with proof of purchase. Alteration to, misuse of, or improper installation of
this product voids the warranty. Curt Manufacturing Inc.'s liability is limited to repair or replacement of products found to be defective, and specifically excludes liability for incidental or
consequential loss or damage.
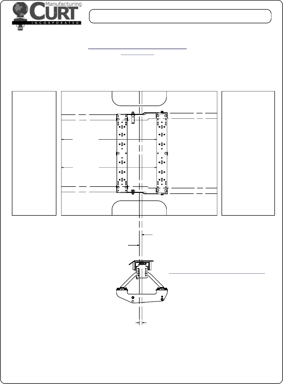
16418 CHEVROLET / GMC SHORT AND LONG BOX
C
A
B
TAIL GATE
TRUCK FRAME
TRUCK FRAME
TRUCK
BOX
1.500 in (LONG AND SHORT BOX)
47.500 in
(SHORT BOX)
HITCH CENTER LINE
AXLE CENTER LINE
RAIL LOCATION DIAGRAM
!IMPORTANT!
SYSTEM MAY NOT WORK WITH
2003 AND EARLIER COMPETITOR
PRODUCTS
SHOWN WITH CURT 16115 5TH WHEEL
52.375 in
(LONG BOX)
NOTE: All measurements are from rear edge of truck box, NOT tailgate.