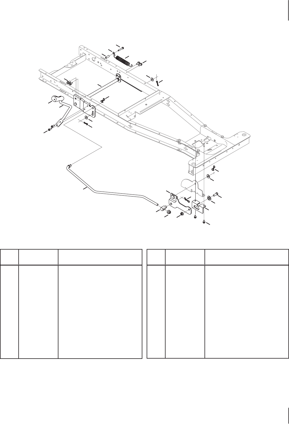
Replacement Part List

Ref.
No.
Part No. Description
1 683-05060 Lift Assembly Shaft
2 683-04757 Front Hanger Bracket Assembly
3 710-04484 Tap Screw, 5/16-18, .750
4 710-0514 Hex Head Screw, 3/8-16, 1.00
5 710-0642 Tap Screw, 1/4-20, 0.750
6 710-0778 Screw, 1/4-20, 1.50
7 710-1652 Tap Screw, 1/4-20 X .625
8 711- 05690 Ferrule, .50 X .50
9 712-04065 Flange Lock Nut, 3/8-16
10 712-05046 Hex Lock Nut, 1/2-13
11 714-04040 Bow-Tie Cotter Pin, 72
20
7
16
4
15
2
11
15
12
11
3
14
1
19
21
15
6
3
12
17
5
13
18
9
10
8
12
Ref.
No.
Part No. Description
12 714-04043 Bow-Tie Cotter Pin, 91
13 720 - 0311 Grip Handle, 1/2
14 732-04692 Extension Spring, .85 OD X 5.915 LG
15 936-0300 Flat Washer, .406 X .875 X .059
16 938-0347 Shoulder Spacer, .625 ID X .169
17 747- 05511 Lift Link Rod
18 747- 05576 Deck Lift Rod
19 750-0566A Spacer, .260 x .375 x 1.030 LG
20 783- 07129 Front Deck Mounting Bracket
21 936-0463 Flat Washer, .250 x .630 x .052
13
Deck Lift










