Installation guide
Table Of Contents

Crestron TPS-6L Isys
®
5.7” Wall Mount Touchpanel
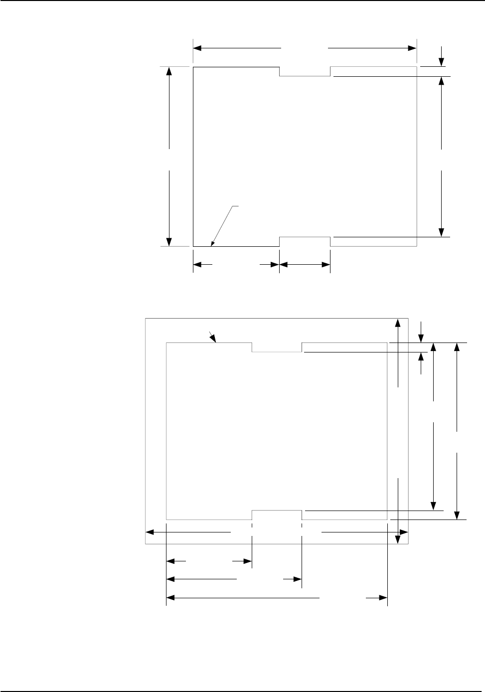
TPS-6L Cutout Dimensions (4504078, 1 of 2)
5/16 in
(8 mm)
TEMPLATE - DV40090
FOR TPS-6L MOUNTING CLIPS ONLY
1 OF 2
DO NOT USE FOR BB-6L, PMK-6L, TMK-6L, MMK-6L, WMKM-6L, WMKT-6L
6 5/8 in
(169 mm)
4 3/4 in
(121 mm)
5 5/16 in
(135 mm)
1 1/2 in
(39 mm)
2 9/16 in
(66 mm)
CUT ALONG THIS EDGE
TPS-6L Cutout Dimensions (4504078, 2 of 2)
5/16 in
(8 mm)
CUT ALONG
THIS EDGE
TEMPLATE - DV40090
FOR TPS-6L MOUNTING CLIPS ONLY
2 OF 2
5 1/16 in
(128 mm)
5 5/16 in
(135 mm)
2 9/16 in
(66 mm)
6 5/8 in
(169 mm)
4 1/16 in
(104 mm)
EDGE OF MOUNTING PLATE
EDGE OF MOUNTING PLATE
1. Locate an area on the wall that is free of miscellaneous wiring and studs.
2. Make a small hole near the middle of the designated site, and verify that the
location is suitable.
Operations & Installation Guide – DOC. 6630A Isys
®
5.7” Wall Mount Touchpanel: TPS-6L • 31