
FOR MORE INFORMATION PLEASE VISIT WWW.COSMOAPPLIANCES.COM 
MODEL# COS-UMC30
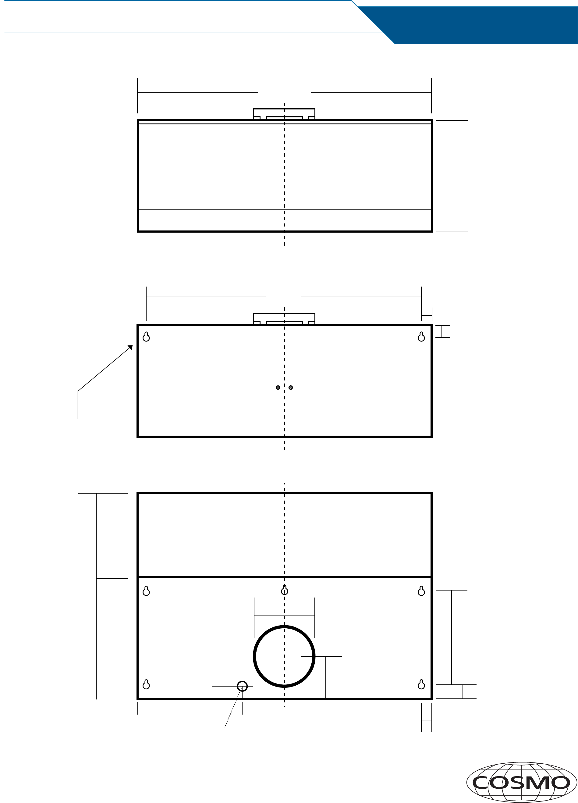
DIMENSIONS
FRONT VIEW
TOP VIEW
29 - 1/2”
9 - 3/4”
27 - 1/2”
1”
1”
HOOD
MOUNTING
SCREWS
BACK
6”
10 - 3/4”
9 - 1/8”
1 - 1/2”
20 - 1/2”
12”
CABINET FRONT
1”
3 1/2”
1 - 1/4”
ELECTRICAL
ACCESS HOLE
(IN CABINET BOTTOM)
RANGE HOOD